[ 物件番号 006 ]
エンゼル西新サウスコート
- 所在地:
- 福岡市早良区曙2-4-21
- 販売価格:
- 5,980万円
都市部を中心に、不動産価格が高騰しています。その理由として挙げられるのは、まず土地自体が値上がりしていること。そして、建設費が上昇していることです。
現在の新築マンションにおいて、3LDKでも70㎡未満のサイズであることが一般的となりました。実は戸建てでも、極小住宅が市場シェアを高めています。いずれにしても、子育てファミリーの間でコンパクトなマイホーム需要が高まっているように見えますが、ホンネとしては「広い家は、高くて手が届かないから選んでいる」のではないでしょうか。
そんな時こそ、やはり「中古+リノベーション」が一つの答えとなります。
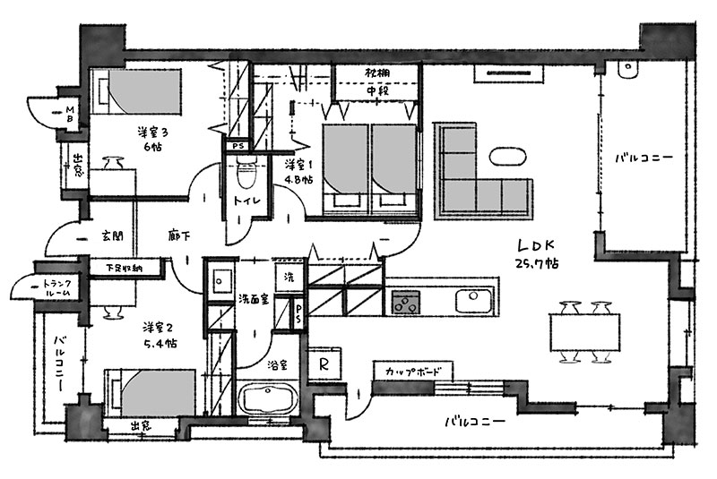
今回の物件は早良区曙にあり、西新小、そして百道中が校区です。子育て意識の高い方に好まれる文京エリアですが、そんな優れた立地にある95㎡のマンションを、贅沢にも3LDKにリノベーション。28帖サイズのリビングを持つ、ゆとりのマイホームが誕生しました。
宅内はどんな家具にもマッチしやすいオークのフローリングを基調に、トレンド感を反映したウォームグレー色の建具を採用。新築とは異なる「落ち着いた生活空間」を演出しています。リビングは家族が食事をして、テレビを見るだけの場所ではありません。一人ひとりが思い思いに過ごしても、程よい距離感を保てるゆとりの空間が実現しました。
もちろん、都心ならではのコンパクトな暮らしも「あり」ですが、この広さを体感するとなかなか戻れないかもしれません。おうちで過ごす時間が多いご家族に、ぜひ見ていただきたいマイホームが誕生しました。
※2枚目の写真は完成予定CGです。
※内観写真はリノベーション前の状態です。













