[ 物件番号 010 ]
のむら貝塚ガーデンシティ五番館【未改装物件】
- 所在地:
- 福岡市東区箱崎5-11-5
- 販売価格:
- 2,350万円
こちらの「のむら貝塚ガーデンシティ」は、総戸数1,000戸を超える巨大なマンション群です。そのため管理体制も整っており、今後も安心して暮らせる環境の継続が見込まれます。新築では80㎡サイズの物件が減っている中、コスパとデザインを両立できる暮らしが実現できる空間となりそうです。
なにより、未改装で販売される物件が減っている中で、今回のお宅であれば「自分好みにリノベーションをできる」ことが一番のポイントかもしれません。リノベーション費用が1,300万円として、物件費との合計で3,650万円。諸費用を含めても、3千万円台で「フルオーダーのマイホーム」が実現します。
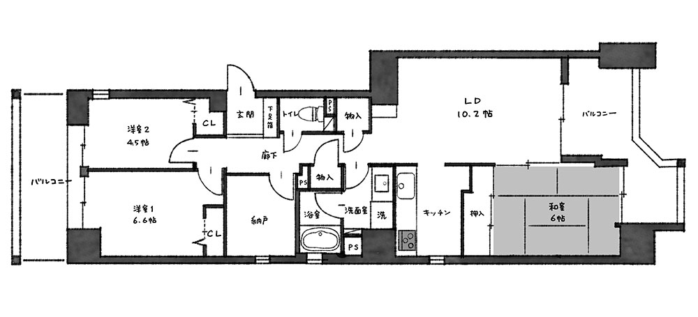
掲載しているお部屋は広さが81㎡あり、居室空間だけでなく収納スペースなどもゆとりがあります。また、上層階のため景観が優れているだけでなく、南北にバルコニーがあることで風通しも良好です。4人暮らしのご家族でも、十分なゆとりを感じるサイズ感です。
ご承知の通り、本マンションに隣接した九大跡地の開発がスピードアップしています。近い将来、間違いなく人気が高まるエリアです。六本松の人気がこの15年でとても高まったように、この辺りも商業、文化、生活が整った憧れの地へと生まれ変わります。
地下鉄貝塚線に乗れば天神方面のアクセスが良いだけでなく、JRの新駅も設置されるため、博多駅にもダイレクトに乗り入れ可能です。元々は学生街として下町風情が残るエリアでしたが、これからは学術連携の暮らしを目指す最先端な地域となるはずです。
※当物件は未改装のまま販売いたします。













