福岡県内の事業者でリノベーション実績(大型リフォーム工事)No.1

お電話でのお問い合わせ

tel.092-980-1100

福岡県内の事業者でリノベーション実績(大型リフォーム工事)No.1

マンションでも100平米を超えたゆとりの生活

マンションでも100平米を超えたゆとりの生活
マンションでも100平米を超えたゆとりの生活
マンションでも100平米を超えたゆとりの生活
マンションでも100平米を超えたゆとりの生活
マンションでも100平米を超えたゆとりの生活
マンションでも100平米を超えたゆとりの生活
マンションでも100平米を超えたゆとりの生活
マンションでも100平米を超えたゆとりの生活
マンションでも100平米を超えたゆとりの生活
マンションでも100平米を超えたゆとりの生活 マンションでも100平米を超えたゆとりの生活 マンションでも100平米を超えたゆとりの生活 マンションでも100平米を超えたゆとりの生活 マンションでも100平米を超えたゆとりの生活 マンションでも100平米を超えたゆとりの生活 マンションでも100平米を超えたゆとりの生活 マンションでも100平米を超えたゆとりの生活 マンションでも100平米を超えたゆとりの生活

DATA

所在地
福岡市中央区
物件価格
非公開
リノベ費用
1,200万円
管理費+修繕積立金
24,830円
築年月
1998年5月
広さ
105.5㎡
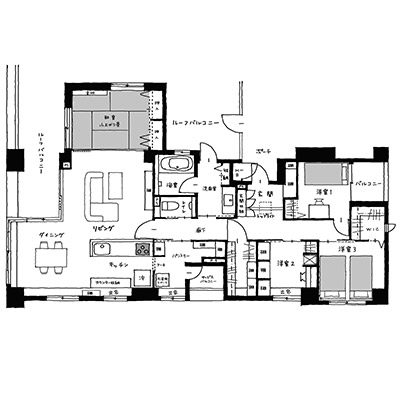
間取り
4LDK
西鉄平尾駅まで徒歩6分、105㎡のサイズと言うだけでも希少性を感じる物件ですが、そこに81.1㎡のバルコニーが備わった本当に「オンリーワン」のお部屋です。

そんな空間を、贅沢にも親子3人のご家族が過ごす場へと再レイアウト。ルーフバルコニーに面した和室とLDKを一体化したことで、リビングは光が燦々と入る気持ちの良い空間に生まれ変わりました。

また、多趣味なご主人の書斎は、たっぷりの収納スペースを確保したオトナの秘密基地のように仕上がっています。

贅沢なはずなのに、どこかホッとする空間に仕上がったのは、お客さまのお人柄あってかも知れません。
BEFORE
リノベーション前の間取図
AFTER
リノベーション後の間取図

リノベ後のお宅紹介 アクセスランキング TOP4