福岡県内の事業者でリノベーション実績(大型リフォーム工事)No.1

お電話でのお問い合わせ

tel.092-980-1100

福岡県内の事業者でリノベーション実績(大型リフォーム工事)No.1

リノベはオシャレで「なければならない」のか

リノベはオシャレで「なければならない」のか
リノベはオシャレで「なければならない」のか
リノベはオシャレで「なければならない」のか
リノベはオシャレで「なければならない」のか
リノベはオシャレで「なければならない」のか
リノベはオシャレで「なければならない」のか
リノベはオシャレで「なければならない」のか
リノベはオシャレで「なければならない」のか
リノベはオシャレで「なければならない」のか
リノベはオシャレで「なければならない」のか リノベはオシャレで「なければならない」のか リノベはオシャレで「なければならない」のか リノベはオシャレで「なければならない」のか リノベはオシャレで「なければならない」のか リノベはオシャレで「なければならない」のか リノベはオシャレで「なければならない」のか リノベはオシャレで「なければならない」のか リノベはオシャレで「なければならない」のか

DATA

所在地
福岡市早良区
物件価格
非公開
リノベ費用
1,100万円
管理費+修繕積立金
16,180円
築年月
1983年12月
広さ
64.80㎡
間取り
2SLDK
インスタグラムなどを見ていると、感度の高い、おしゃれな暮らしをされているお宅がたくさんあります。しかし、本当に「マイホームはオシャレ」でなければならないのか。そんな問題提起を、お客さまから頂いた「気づきの場」です。

一番大切なのは、家族が暮らしやすい場であること。その上で、せっかく購入した不動産が「将来的にも価値ある資産」であることです。

それなのに、ついネットや雑誌を見ていると、どうしても「あれも、これも」と要望がアップグレードしていきます。同時に、お客さまのお宅を「作品」と考えているような設計事務所やリノベ会社だと、お客さまの希望に乗じてどんどん予算がアップしていく…という「悪循環」が発生します。

当社でリノベを検討されているお客さまには「オシャレハラスメント」を生じさせないよう、これからも基本を大切にしたい…と感じた現場でした。
BEFORE
リノベーション前の間取図
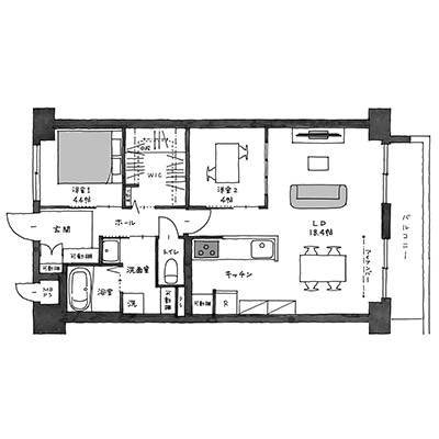
AFTER
リノベーション後の間取図

リノベ後のお宅紹介 アクセスランキング TOP4