福岡県内の事業者でリノベーション実績(大型リフォーム工事)No.1

お電話でのお問い合わせ

tel.092-980-1100

福岡県内の事業者でリノベーション実績(大型リフォーム工事)No.1

大胆リノベで実現!家族の成長に合わせた新しい暮らし

大胆リノベで実現!家族の成長に合わせた新しい暮らし
大胆リノベで実現!家族の成長に合わせた新しい暮らし
大胆リノベで実現!家族の成長に合わせた新しい暮らし
大胆リノベで実現!家族の成長に合わせた新しい暮らし
大胆リノベで実現!家族の成長に合わせた新しい暮らし
大胆リノベで実現!家族の成長に合わせた新しい暮らし
大胆リノベで実現!家族の成長に合わせた新しい暮らし
大胆リノベで実現!家族の成長に合わせた新しい暮らし
大胆リノベで実現!家族の成長に合わせた新しい暮らし
大胆リノベで実現!家族の成長に合わせた新しい暮らし 大胆リノベで実現!家族の成長に合わせた新しい暮らし 大胆リノベで実現!家族の成長に合わせた新しい暮らし 大胆リノベで実現!家族の成長に合わせた新しい暮らし 大胆リノベで実現!家族の成長に合わせた新しい暮らし 大胆リノベで実現!家族の成長に合わせた新しい暮らし 大胆リノベで実現!家族の成長に合わせた新しい暮らし 大胆リノベで実現!家族の成長に合わせた新しい暮らし 大胆リノベで実現!家族の成長に合わせた新しい暮らし

DATA

所在地
北九州市八幡東区
物件価格
所有済み
リノベ費用
1,480万円
管理費+修繕積立金
非公開
築年月
2005年10月
広さ
87.96㎡
間取り
2LDK +S
皿倉山を真正面に望む絶景が自慢のマンション。約10年前にご購入され、お子さまの成長をご夫婦と一緒に見守ってきた、思い出がたくさん詰まったお部屋ですが、この度、大胆にリノベーションされました。

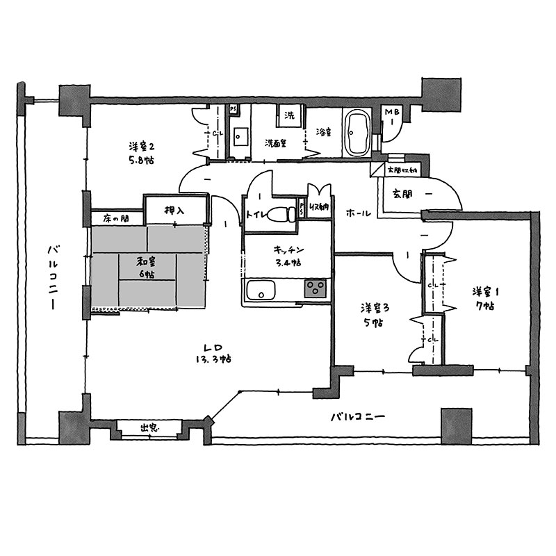
子どもたちが小さい頃に重宝した和室は、最近はあまり使うことがなかったため、思い切ってリビングと一体化。家族4人が集まってもゆとりのある広々したLDKに。リビングに隣接した子ども部屋には、仕切り戸と別の扉を付けることで、思春期のプライバシーに配慮したつくりになっています。

キッチンは料理好きなご夫婦が、二人で作業しても十分なスペースを確保。玄関から直接キッチンに入れる動線も増設し、利便性も高まりました。

ほぼ物置状態で使い勝手が悪かった玄関そばの洋室は、広々ウォークインクローゼットに。さらに、玄関土間にシューズクロークを併設することで、趣味やクラブ活動で増えた荷物もスッキリ。

また、高台にあり、室内外の温度差で冬場は結露に悩まれていたそうですが、すべての窓を2重窓にしたことで、リノベ後はまったく結露しなかったとのこと。電気代も下がって、大満足のご様子でした。

子どもの成長など、暮らしの変化に柔軟に対応できるのもリノベーションの魅力のひとつ。家族のこだわりを詰め込んだ新しいマイホームで、より快適な生活が始まりました。
BEFORE
リノベーション前の間取図
AFTER
リノベーション後の間取図

リノベ後のお宅紹介 アクセスランキング TOP4