福岡県内の事業者でリノベーション実績(大型リフォーム工事)No.1

お電話でのお問い合わせ

tel.092-980-1100

福岡県内の事業者でリノベーション実績(大型リフォーム工事)No.1

無骨で優しい新旧混在のオープンな空間

DATA

所在地
福岡市中央区
物件価格
2,180万円
リノベ費用
680万円
管理費+修繕積立金
19,030円
築年月
1983年3月
広さ
70.77㎡
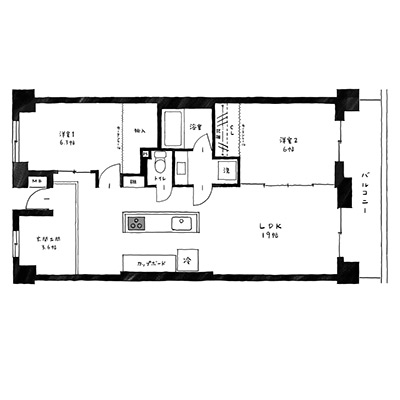
間取り
2LDK+土間
大濠公園も徒歩圏内と言う優れた立地のマンションが、突き抜けた広さを持つ大空間へと生まれ変わりました。

なによりも玄関から一望できるリビング空間が特徴的なお宅ですが、リビングには無骨でモルタライクな雰囲気と、ナチュラル感がほどよく混在しています。

その理由は室内のドアにあります。3ヶ所の既存ドアを塗装したことで「新旧混在」の状態が生じ、むき出しの天井モルタルが持つスタイリッシュな雰囲気と、家庭的な優しさが調和されています。

ここに暮らす家族の関係が垣間見える、オープンな空間が完成しました。
BEFORE
AFTER

リノベ後のお宅紹介 アクセスランキング TOP4