※このイベントは終了しました。

東京などの首都圏では、新築マンションよりも中古マンションの方が売れています。その理由は「中古マンション+リノベーション」なら、新築の半額から2/3のコストでフルオーダーのマイホームに住めるからです。
日本の人口が今後大きく減少していく中で、これまで以上に不動産に求められているものは「立地」です。立地に優れた物件を、将来のことも考えてリノベーションすれば、住みやすさと資産性を両立出来ることになります。
今回、オープンハウスを開催させて頂くマンションは、まさにそんな条件を備えた物件でした。


天神にも博多駅にも自転車で10分以内で、なおかつ最寄りの地下鉄渡辺通駅や西鉄薬院駅までも徒歩圏内。近隣には商業施設や文化施設が多数点在するにも関わらず、川沿いの気持ちの良いロケーションを持つヴィンテージマンションでした。
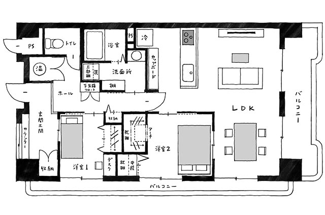
とは言え、解体前は築39年の内装でしたので、これからの新生活をイメージしにくいお宅でした。そこで、当社でフルリノベーションを施し、現代の暮らしにマッチしたレイアウトへと変更させて頂きました。
今回の物件費と工事費、その他の費用を合計するとかかった費用は2,650万円です。こだわりや遊びがたくさん詰まったお家が、近隣(薬院駅または渡辺通駅)の新築と比べるとやっぱり2/3程度のコストで済んでいます。
もちろん、工事に際しては給排水管や電気配線などもすべてリプレイスし、リノベーション協議会が定める「R1品質」を確保。将来の安心も担保しています。
そんなリノベーションの魅力を体感して頂けるオープンハウスを、4日間限定で開催。ご自宅などのリノベーションに関するご相談を承るだけでなく、これから「中古マンション探し+リノベーション」をスタートされる方にもオススメな「初めてのマイホーム探し相談会」を同時開催。
物件探しとリノベーションをセットで行うことで、時間もお金もムダなく進めることができます。マイホーム探し中の方も、リノベーションをご検討中の方も、お気軽にご来場ください。