福岡県内の事業者で大型リフォーム工事実績 No.1

お電話でのお問い合わせ

tel.092-980-1100

福岡県内の事業者で大型リフォーム工事実績 No.1
4月12日OPEN

人気上昇中の箱崎エリア - アイデア満載のリノベ空間

福岡市東区箱崎5-11-2
のむら貝塚ガーデンシティ貮番館



九大跡地の開発が、いよいよスピードアップしています。近い将来、間違いなく人気が高まるのが貝塚・箱崎エリアです。

再開発エリアから見ると国道の向こう側に位置する「のむら貝塚ガーデンシティ」は、総戸数1,000戸を超える巨大なマンション群です。

築30年ぐらいの建物で、ちょうどリノベ向きの年数となっています。当社でも、過去に何度も工事させていただきました。

過去に施工した本物件の一部
・将来も意識したシンプルで、美しい空間
・圧倒的な解放感を感じさせる傾斜天井の魅力


(※宅内画像は完成予想CGです)

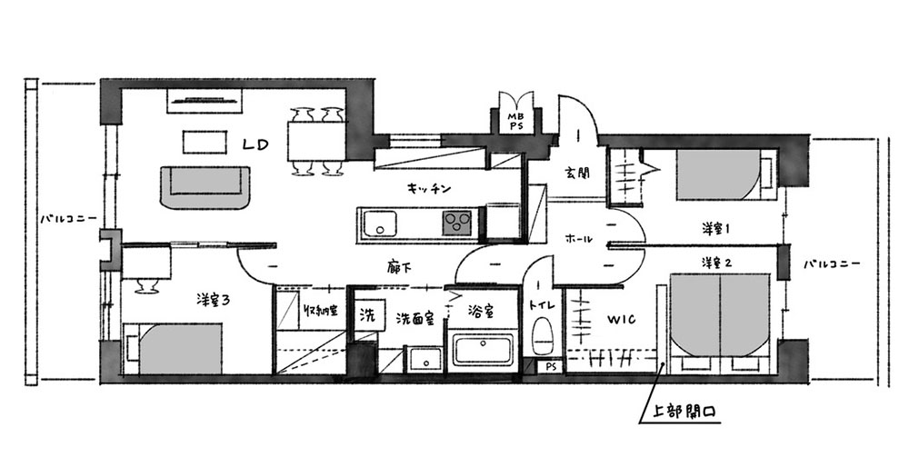
対象のお部屋は広さが72㎡あるとはいえ、解体前は個室優先の横長レイアウトで、肌感覚としてはコンパクトに感じる空間でした。

そのため、今回のリノベでは間取りを大胆に変更し、廊下部分を生活空間に組み入れることで、家族4人がストレスなく暮らせるリビングを実現しました。

(※宅内画像は完成予想CGです)

既存設備を単に新品に置き換えるリフォームではなく、リノベならではの空間デザインが大きな見どころです。実際、コンパクトな空間を暮らしやすくリノベすることで、結果的に「コスパに優れたマイホーム」が実現します。

リノベーションをご検討中の方はもちろん、マイホームの「予算感」にお悩みの方にも、ぜひ見ていただきたい空間となっています。



【こんな方におすすめ】
・これからマイホーム探しをスタートする方
・コスパとデザインを両立したい方
・将来の資産となるマイホームを検討中の方
・資金計画でお悩み中の方
・リノベーションをご検討中の方

【物件概要】
間取り:3LDK
広 さ:72.34㎡
階 数:3階(RC11階建)
築年月:1987年1月



【会場・日時】
福岡市東区箱崎5-11-2
のむら貝塚ガーデンシティ貮番館
地下鉄箱崎線「貝塚駅」より徒歩10分
西日本鉄道貝塚線「貝塚駅」より徒歩10分

公開日:2026年4月12日オープン!

見学申し込みフォーム

イベント名
必須希望日

※上記に希望日(4月12日以降)をご入力ください
(火曜・水曜 休み)

必須希望時間(第1希望)
  • 10:00~12:00
  • 13:00~15:00
  • 15:00~17:00
  • 何時でも構わない
必須希望時間(第2希望)
  • 10:00~12:00
  • 13:00~15:00
  • 15:00~17:00
  • 何時でも構わない
必須お名前
必須ふりがな
必須ご住所
必須電話番号
必須メールアドレス

@hapirino.co.jpからのメールを
受信できるメールアドレスをご入力ください。

必須目的
  • マイホーム探し+リノベーション
  • リノベーション(※改装される物件資料をご持参ください)
主に検討しているタイプ
(マイホーム探しの方のみ)
  • 戸建
  • マンション
  • 両方
参加人数
今回のイベントを何でお知りになりましたか?
  • 検索エンジン
  • Instagram
  • チラシ
  • フリーペーパー
  • 雑誌
  • 知人の紹介
  • 当社からのLINEやDM
  • 他ホームページ
  • Twitter
  • その他
コメント欄(ご質問やご要望などがありましたらご記入ください)

お電話でのお申し込み・お問い合わせ

tel.092-980-1100

電話受付時間 10:00~18:00

個人情報の取り扱いについて

株式会社はぴりのでは、個人情報保護法の趣旨に基づき、 個人情報の適正な取り扱い、及び保護に努めます。取得した個人情報は適切に管理し、業務運営上必要な場合に限り利用することとし、個人情報保護法に定める例外を除いて、本人の同意を得ることなく使用することや、第三者への情報提供・開示を行うことはございません。詳しくはプライバシーポリシーのページをご確認ください。

リノベ後のお宅紹介 アクセスランキング TOP4