福岡市早良区曙2-4-21
エンゼル西新サウスコート
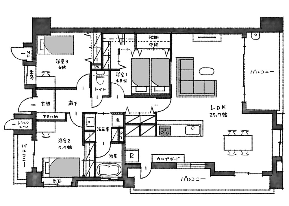
新築マンションの平米数は、土地と建築費の高騰でどんどん狭くなっています。3LDKでも60㎡台が普通ですし、80㎡の広さがあれば4LDKで販売されることが最近では一般的です。
そんな中、今回のモデルルームは贅沢にも95㎡の空間を3LDKへリノベーション。改装前の4LDKとしてもゆとりを感じる空間でしたが、東南角部屋のレイアウトを活かし、2方向から日照を得られる明るいリビングが実現しました。
宅内のテイストはナチュラルモダンに統一。建具の色も人気のウォームグレーを採用することで、フローリングのオークの色味とマッチした空間が誕生しました。もちろん、はぴりの!ならではの「デザイン性」と「コスパ」を両立する仕組みもたくさん取り入れた現場です。
リビングは単に家族が食事をし、テレビを見る空間ではなくなりました。子どもたちが勉強をしたり、在宅ワークに使ったり。そんな現代的な暮らしを実現するためには、なにより「中古+リノベ」という選定で総予算を抑えることが有効です。
これからの時代のスタンダートとなる「マイホームのあり方」を、ぜひモデルルームでご体感ください。

株式会社はぴりのでは、個人情報保護法の趣旨に基づき、 個人情報の適正な取り扱い、及び保護に努めます。取得した個人情報は適切に管理し、業務運営上必要な場合に限り利用することとし、個人情報保護法に定める例外を除いて、本人の同意を得ることなく使用することや、第三者への情報提供・開示を行うことはございません。詳しくはプライバシーポリシーのページをご確認ください。