福岡県内の事業者で大型リフォーム工事実績 No.1

お電話でのお問い合わせ

tel.092-980-1100

福岡県内の事業者で大型リフォーム工事実績 No.1

カッコよくてかわいい暮らしの場

DATA

所在地
福岡市南区
物件価格
2,890万円
リノベ費用
900万円
管理費+修繕積立金
22,700円
築年月
2001年8月
広さ
78.85㎡
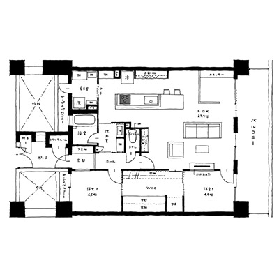
間取り
2SLDK+家事室
「かわいい」と「カッコいい」は対比されがちですが、暮らしの中で両立することは可能です。

各所にレイアウトされた「黒」がポイントとなったこちらのお宅、第一印象としてはカッコいいんです。それでも家具やインテリアが入り込むことで、不思議と「かわいい」とも感じられる空間になっています。

もちろん、住む人の雰囲気にもよるのかも知れませんが、家は「ハコ」ではなく暮らしの場です。だからこそ、カッコ良過ぎず、かわい過ぎず、ほどよいバランスが一番落ち着くのかも知れません。
BEFORE
AFTER

リノベ後のお宅紹介 アクセスランキング TOP4