福岡県内の事業者でリノベーション実績(大型リフォーム工事)No.1

お電話でのお問い合わせ

tel.092-980-1100

福岡県内の事業者でリノベーション実績(大型リフォーム工事)No.1

多様性に満ちたアシンメトリーな空間

DATA

所在地
北九州市若松区
物件価格
所有済み
リノベ費用
非公開
管理費+修繕積立金
なし
築年月
不明
広さ
106.47㎡(2階部分のみ)
間取り
--
元々、注文住宅兼店舗として建てられたシンプルで、スタイリッシュな戸建でした。設計士と施主のこだわりがつまったデザインではあったものの、築年数を経たことで、どうしても設備を中心に劣化が進んでいました。

今回のリノベでは、元々の家に備わっていた美しさを活かしながら、新しい生活の場へと再生させて頂きました。現場を担当した大工に聞くと「新築よりも、自由度が高いリノベーションの方がはるかに難しい」とのこと。しかも、本宅は高いレベルのデザイン性を持つ注文住宅でしたので、いつも以上に様々な検討が必要でした。

すべてを変えず、そこにある空間や素材を活かしながら、新しい生活の場を作り出す。古いものを単に新しくするだけでなく、アシンメトリーに調和させる。多様性を許されるのは、なにも人間だけではありません。これからの時代、家にも多様性があっていいのではないでしょうか。
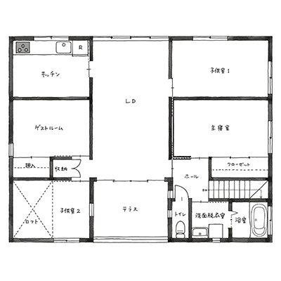
BEFORE
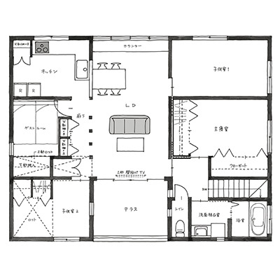
AFTER

リノベ後のお宅紹介 アクセスランキング TOP4