あなたの人生を作り出すのは、あなた自身です。 一つひとつの選択が、結果として あなたの人生を形作っていきます。 選択を楽しみ、生きることを楽しむ。 デザインの本質を知る、大人への提案です。
福岡を代表するリノベ会社「はぴりの!」と、
全国の富裕層から高い支持を得ている
「ハイエンド」が協力して、
百道浜に建つ築34年のマンションを
リノベーションします。
本質を意識した「デザインの力」で、
新築とは異なるハイグレードで
美しい暮らしの場を実現。
中古+リノベならではの
コストパフォーマンスにもご注目ください。




2025.11.04
当モデルルームを設計するHIGH ENDの徳永氏と、はぴりの!の広報やマーケティングを担当する竹内氏が、リノベーションの現在地と未来について対談しました。
2025.10.25
ついに新モデルルーム「THE POWER OF DESIGN」が完成しました。フォトギャラリーにたっぷりと写真を掲載していますので、ぜひご覧ください。
2025.10.16
当モデルルームを設計するHIGH ENDの徳永氏と、はぴりの!の不動産事業部に所属する井野氏が、「お金」のことや「家に対する考え方」について対談しました。
2025.09.12
当モデルルームを設計するHIGH ENDの徳永氏に、はぴりの!の若手プランナー吉川氏が「設計に対する考え方」と「当モデルルームの見所」について話を聞きました。
私たちハイエンドは、富裕層向けのハイクラスなリノベーションを得意とする会社です。今回のモデルルームも、私たちらしさを活かして「質の高い家」を目指します。
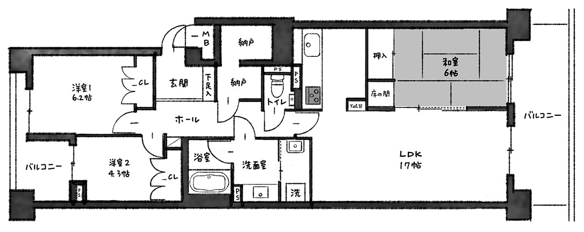
その中で最も重視したのは間取りです。間取りにゆとりがなければ、空間にも暮らす人の心にもゆとりは生まれません。心地よい家づくりにおいて「ゆとり」は欠かせない要素だと考えています。
特にそのゆとりを感じていただけるのが玄関です。玄関は帰宅時に最初に目にする、いわば家の顔。ドアを開けた瞬間に心地よい空間が広がっていれば、家全体も自然と心地よく感じられます。今回の最大の見どころは、この玄関と、そこからリビングへと続く空間です。
また今回、はぴりの!さんと協業した物件のため、コストを抑えることも重要なテーマでした。その中で私たちが示したいのは、「すべてにハイグレードな素材を使わなくても、上質で心地よい家はつくれる」ということです。
良い素材を使うだけで良い家ができるわけではありません。心地よい空間には理由があり、しっかりとした考えに基づいた設計・デザインによって初めて実現します。当プロジェクトを通じて、そのことを多くの方に感じていただければ幸いです。
設計者 徳永 祐史 (株式会社 HIGH END)


| 物件名 | シーサイドももちヴェルデコート6番館 |
| 所在地 | 福岡市早良区百道浜3-3-6 |
| 交 通 | 地下鉄空港線「藤崎駅」徒歩11分 |
| 築年月 | 1991年7月 |
| 構造/階数 | SRC14階建 / 10階部分 |
| 専有面積 | 88.99㎡(3LDK) |
| 管理費 | 7,100円 |
| 修繕積立金 | 11,600円 |
| リノベ工事費 | 1,690万円(税別) |
福岡を拠点に、全国の富裕層向けにハイグレードなリノベーションを展開するハイエンド。全てのプロジェクトにおいて「上質であること」「快適であること」「心地が良いこと」を目指している。
本質的な美しさはもちろん、機能美を追求したライフスタイルの提案で、各方面から高い評価を得ている。
福岡都市圏のリノベーションに特化し、年間50件以上の施工を手がける。デザイン性だけでなく、コスパと「安心&安全」を重視する考え方が特徴。
リノベーションはもちろん、マイホーム探しからの顧客にも寄り添い、「全ての生活者が、ムリのない支払いで自分らしいマイホームを実現できる社会の実現」を目指している。