福岡県内の事業者で大型リフォーム工事実績 No.1

お電話でのお問い合わせ

tel.092-980-1100

福岡県内の事業者で大型リフォーム工事実績 No.1

カフェテイストの「いい空気、いいくらし」

DATA

所在地
福岡市中央区
物件価格
非公開
リノベ費用
1,190万円
管理費+修繕積立金
9,100円
築年月
1996年3月
広さ
66.38㎡
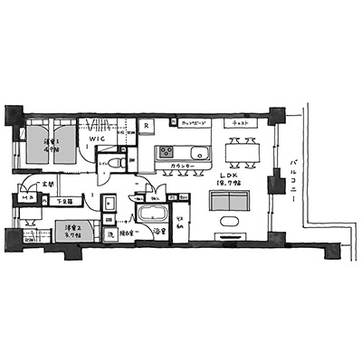
間取り
2LDK
白い床に、グレージュウォールナットの優しい色合いがマッチしたカフェテイストのお宅です。元々3LDKだった空間を、これからの家族構成を意識して2LDKへと部屋数ダウン。その分、しっかりと収納スペースを確保し、家族が長く過ごすリビングの居心地をアップしています。

同時に、省エネや健康が重視される時代を反映し、外壁に接した壁面と窓をしっかり断熱。断熱数値が大きく改善したことで、電気代もダウンしています。

さらに、全熱交換型空調システムを設置したことで、宅内の空気質も向上。花粉やPM2.5などの侵入を抑制してくれると同時に、室内の温度差を一定に保ってくれるので「健康な暮らし」が実現できる空間となりました。

こちらのお宅は、当社がパナソニックの協力で実現したモデルルーム仕様ということもあり、宅内には最新の住宅設備が設置されています。これからの時代を先取りした設備に支えられた「いい空気、いいくらし」を体感いただける空間です。

BEFORE
AFTER

リノベ後のお宅紹介 アクセスランキング TOP4