福岡県内の事業者で大型リフォーム工事実績 No.1

お電話でのお問い合わせ

tel.092-980-1100

福岡県内の事業者で大型リフォーム工事実績 No.1

「こだわり過ぎない」というこだわり

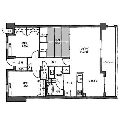
DATA

所在地
福岡市城南区
物件価格
3,580万円
リノベ費用
1,320万円
管理費+修繕積立金
26,790円
築年月
2004年12月
広さ
79.31㎡
間取り
2SLDK+ワークスペース
一見するとオーソドックスな間取りとスッキリとした色で統一された空間ですが、このシンプルな美しさと実用性の両立こそ、難易度が高いリノベーションかも知れません。

どんな家具ともマッチする床材をベースに、全体を包み込むようなテイストのクロスがセレクトされています。そこにグラフテクトやクアドロスリムなどのスタイリッシュな設備をさりげなく配置し、タイルや照明器具などが空間アクセントとなっています。

ファッションでも食事でも、シンプルな中に美しさが求められる時代です。デコレーティブなリノベーションがトラッドなフレンチだとすると、シンプルなリノベーションは創作懐石かもしれません。

もちろん、それぞれの料理に魅力はありますが、スッキリとした美しさに対するニーズが高まっているのは間違いありません。
BEFORE
AFTER

リノベ後のお宅紹介 アクセスランキング TOP4