福岡県内の事業者でリノベーション実績(大型リフォーム工事)No.1

お電話でのお問い合わせ

tel.092-980-1100

福岡県内の事業者でリノベーション実績(大型リフォーム工事)No.1

家族の幸せを実現したゆとりのマイホーム

DATA

所在地
福岡市南区
物件価格
2,730万円
リノベ費用
1,270万円
管理費+修繕積立金
23,000円
築年月
1997年3月
広さ
72.21㎡
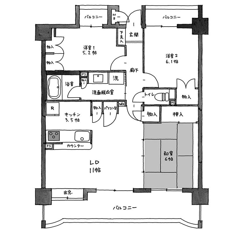
間取り
2LDK+S
とっても仲の良い3人家族が暮らす、ゆとりの2LDKが完成しました。玄関横のシューズクロークには靴だけでなく、たくさんのアウトドアグッズも置くことができます。また、大きな窓があるので換気も可能です。さらに、夫婦の寝室には大きなウォークイン収納を設置しているので、結果的に各居室がスッキリとしています。

一方、リビングや寝室にはニッチや飾り棚を配置し、お気に入りの小物や写真が飾れるようになっています。空間にメリハリをつけているからこそ、こういった「遊び」が可能となりました。

マイホームに実用性や安心&安全の確保はもちろん必要ですが、同時に「ワクワクする空間」であることも大切です。好きなモノに囲まれて、一人ひとりの家族が居心地よく暮らす。これこそが、マイホームを購入する第一の目的のはず。そのためにこそ、空間と支払いには「ゆとり」が必要だと私たちは考えています。
BEFORE
AFTER

リノベ後のお宅紹介 アクセスランキング TOP4