福岡県内の事業者でリノベーション実績(大型リフォーム工事)No.1

お電話でのお問い合わせ

tel.092-980-1100

福岡県内の事業者でリノベーション実績(大型リフォーム工事)No.1

家族の愛が詰まった「かまくらアーチ」

DATA

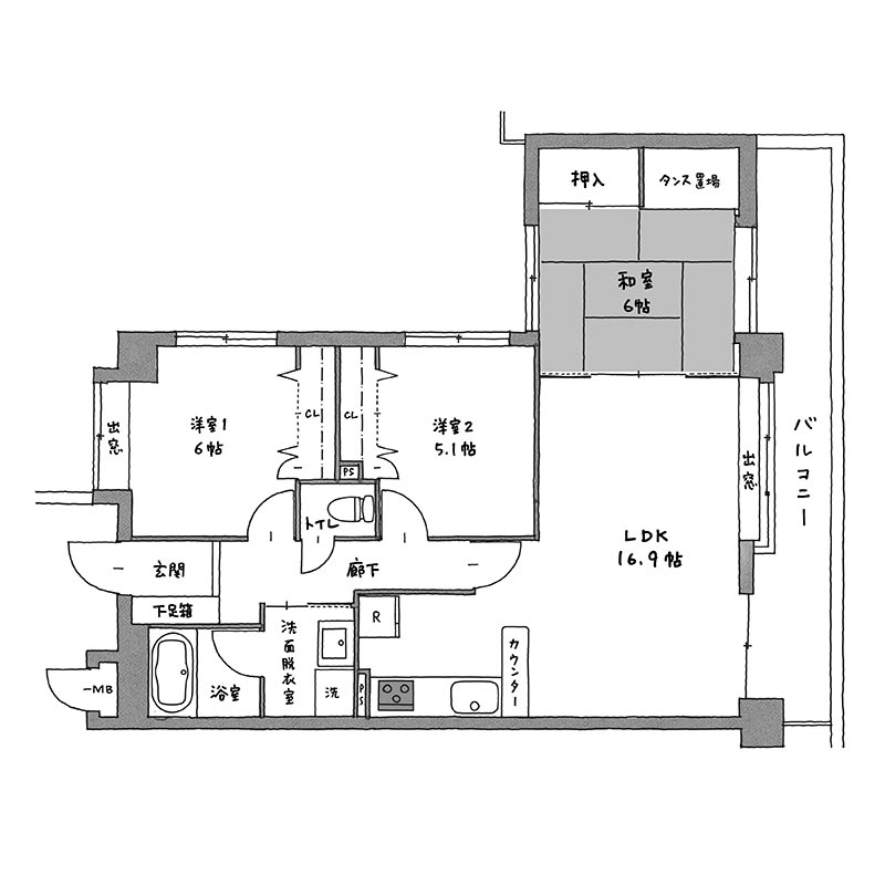
所在地
福岡市城南区
物件価格
2,100万円
リノベ費用
1,030万円
管理費+修繕積立金
24,500円
築年月
1994年9月
広さ
78.76㎡
間取り
2LDK+S
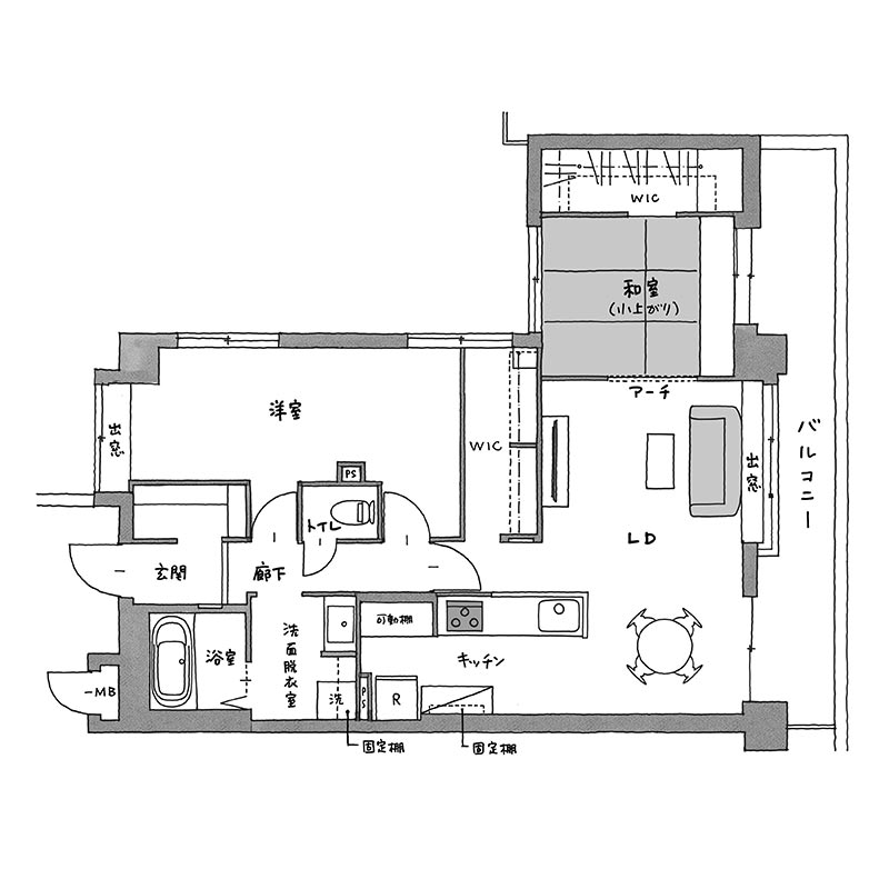
リビングを抜けると、そこに「かまくらアーチ」があった。

福岡市城南区に、川端康成の「雪国」の一節が浮かぶようなマイホームが誕生しました。新たに家族の一員となった赤ちゃんとの暮らしは、パパとママが心から待ち望んでいたもの。同時に、初めてのことが続く子育てでは、家族みんながストレスなく過ごせる空間であることも大切ですよね。

そんなパパとママと、さらに当社スタッフが愛を込めて考えたプランが「かまくらアーチのある和室」です。リビングとつながった小上がり仕立ての和室は、赤ちゃんのお昼寝タイムはもちろん、おむつを変える時にも便利な空間です。ご夫婦にとっても、ヌックのように使える使い勝手の良い空間となりました。将来的には日当たりの良いこの部屋を「夫婦の寝室」としても使えるよう、WICも設置しています。

マンションのリノベでは「和室のない間取り」が増えていますが、子育て中は意外と役立つのも事実です。日本人の「暮らしの知恵」が詰まった和室を、現代でもマッチした空間へとアップデートすることができました。
BEFORE
AFTER

リノベ後のお宅紹介 アクセスランキング TOP4