福岡県内の事業者で大型リフォーム工事実績 No.1

お電話でのお問い合わせ

tel.092-980-1100

福岡県内の事業者で大型リフォーム工事実績 No.1

無駄を削ぎ落とした「これからのプレミアム」な空間

DATA

所在地
福岡市博多区
物件価格
2,100万円
リノベ費用
1,680万円
管理費+修繕積立金
19,060円
築年月
1982年6月
広さ
69.39㎡
間取り
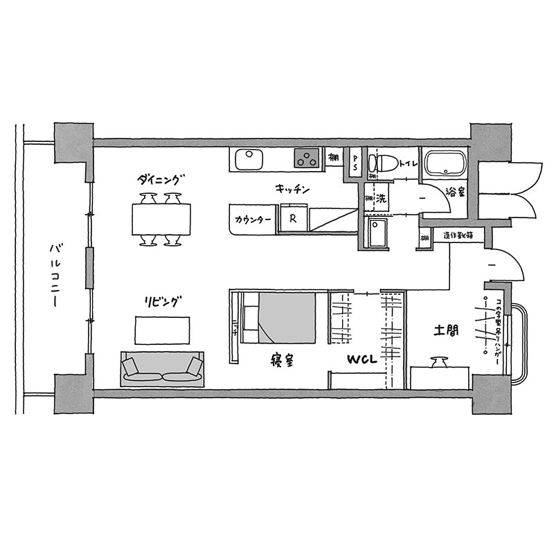
ワンルーム
博多駅まで徒歩5分。福岡を代表する都心部に、落ち着いたギャラリーのような空間が誕生しました。今回協業したアスターと共に目指したのは、これからの時代を先取りしたプレミアムな空間です。

間取り的にはワンルームとなっていますが、実際はご夫婦2人暮らしを意識しています。玄関土間は在宅ワーク空間としてはもちろん、自転車などの整備やプライベートギャラリー的にも使えます。リビングには選び抜かれた家具が主張しすぎず佇んでおり、ゆっくりと大人の会話を楽しめそうです。

寝室やウォークインクローゼット、バスルームなどのプライベート空間は、すっきりとした直線と白で作り上げられており、優しさの中にも凛とした空気を感じることができます。プロの目から見ても、デザインと技術のこだわりが随所に感じられる空間です。

時にはホテルのように、時には事務所のように。型にはまらない大人が、自分らしく過ごせるプレミアムな空間。いろいろな思考を足すのではなく、削ぎ落としていった先のシンプルな暮らしの場が、リノベーションのトレンドを予見しているようです。

これからのプレミアム
BEFORE
AFTER

リノベ後のお宅紹介 アクセスランキング TOP4