福岡県内の事業者で大型リフォーム工事実績 No.1

お電話でのお問い合わせ

tel.092-980-1100

福岡県内の事業者で大型リフォーム工事実績 No.1

建築士と共に作った縦長デザインの家

DATA

所在地
福岡市中央区
物件価格
非公開
リノベ費用
1,400万円
管理費+修繕積立金
23,480円
築年月
1982年6月
広さ
88.52㎡
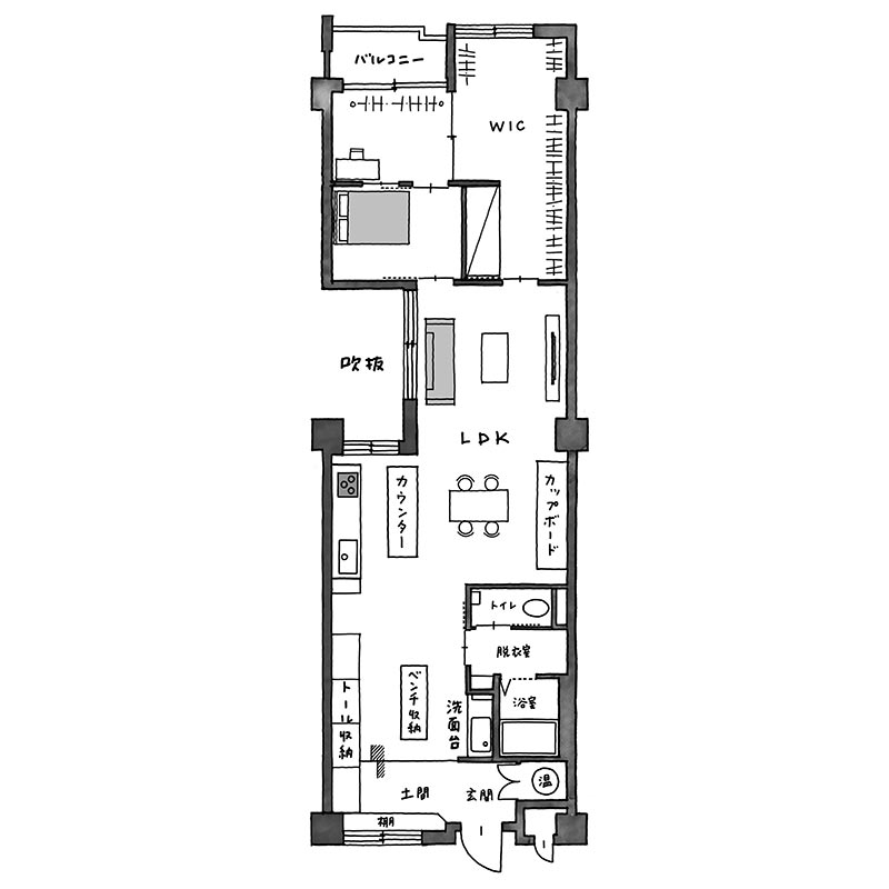
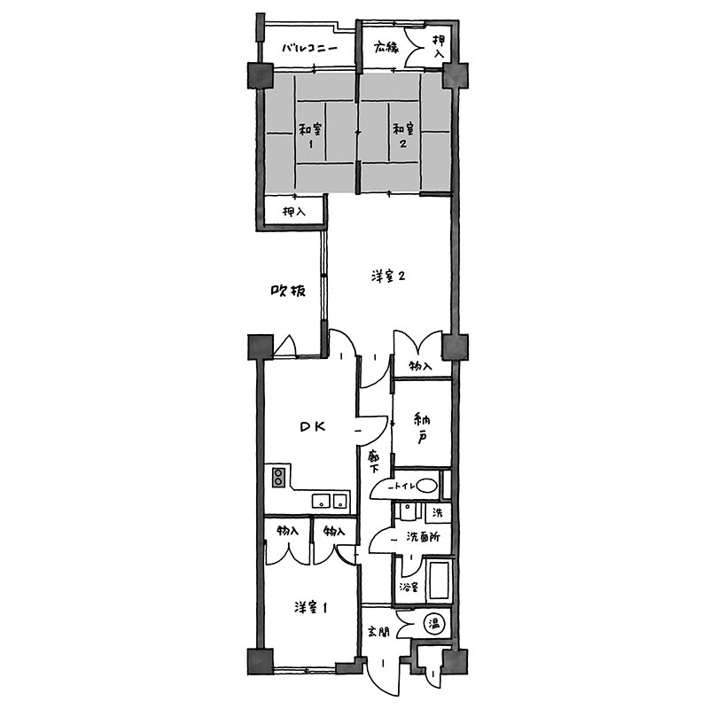
間取り
1LDK+WIC+ワークルーム
シナ合板やラワンの合板は、基本的に建築現場では下地材として使用されることが多いのですが、リノベーション時には主役以上の存在感を示すこともあります。今回のお宅では建具や棚板などを合板で造作し、塗装したことで、完成直後から「程よく使い込まれたヴィンテージ感」のある空間となっていました。

間取りを見ていただくとお分かりのように、縦長でプラン作成が難しい現場でした。ただし、今回のお客さまご自身が建築士だったこともあり、設計に関してはお客さまのアイデアがたくさん盛り込まれています。

また、リノベ好きの方ならご存知の「toolbox」製キッチンを採用。大手メーカー品とは異なり、設置時から空間に馴染んでいました。

一点だけ、お客さまにお伝えしておきたいのは「合板を使った造作」や「toolboxのキッチン」を使うことは、コストカットにはならないという事実です。オンリーワンのマイホーム作りには結びつくものの、工賃を含めると大抵の場合、大手メーカーの標準品の方がコスパよく仕上がります。

リノベーションにおいては、デザインとコスパをどうバランスを取るのか。さらに、マイホームを購入される方であれば、どんな価格の物件を選ぶのか。こういう組み合わせの難しさも、リノベならではの「自由度の高さ」かもしれませんね。
BEFORE
AFTER

リノベ後のお宅紹介 アクセスランキング TOP4