福岡県内の事業者で大型リフォーム工事実績 No.1

お電話でのお問い合わせ

tel.092-980-1100

福岡県内の事業者で大型リフォーム工事実績 No.1

20代同級生夫婦がかしこく選んだ団地リノベ

DATA

所在地
福岡市早良区
物件価格
980万円
リノベ費用
1,300万円
管理費+修繕積立金
12,100円
築年月
1975年12月
広さ
86.04㎡
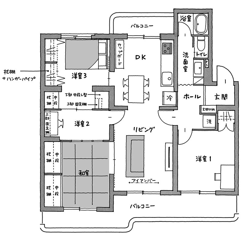
間取り
4LDK
20代の“仲良し同級生夫婦”が選んだのは、まもなく築50年を迎える歴史ある団地。東京から福岡に転勤となり、賃貸マンションにお住まいでしたが、たまたま近くにあったこの団地が気になって、私たちにご相談をいただきました。

団地に多い壁式構造のため、大胆な間取り変更は難しい状況でした。それでも、白で統一されたシンプルなデザインと、設備や家具の配置を工夫することで、ゆとりのある空間が実現できています。また、洗濯機スペースを移動したことで、洗面や脱衣所も十分な広さが確保できました。

全ての開口部には内窓を新設して断熱性を向上。宅内の快適性にはこだわりがみられる一方で、収納部には建具を使用しないなど、メリハリを付けてコスト管理をしたそうです。実はこちらの団地、建て替えの話も出ているとのこと。だからこそ、「リノベに費用をかけ過ぎない」ということも、大切にしたポイントでした。

高度経済成長期に建てられた多くの団地。約半世紀が過ぎた今、改めて見ると、とても贅沢なロケーションで建てられていることに気づきます。建物同士の間隔が広いため、日当たりや通風が良好ですし、広大な敷地には公園もあり、たくさんの緑に囲まれています。

今回のお宅も両面のバルコニーから気持ちのいい風が通り抜け、部屋から見える木々の緑が都会の喧騒を忘れさせてくれます。東京から福岡に来られたご夫婦も、この環境が気に入って、購入を決意したそうです。

都心部の新築住宅がどんどんコンパクトになる中、団地リノベは、良好な生活環境を手に入れるためのかしこい選択かもしれません。

Enjoy at Home
BEFORE
AFTER

リノベ後のお宅紹介 アクセスランキング TOP4