福岡県内の事業者でリノベーション実績(大型リフォーム工事)No.1

お電話でのお問い合わせ

tel.092-980-1100

福岡県内の事業者でリノベーション実績(大型リフォーム工事)No.1

家族への想いがいっぱい詰まった家

家族への想いがいっぱい詰まった家
家族への想いがいっぱい詰まった家
家族への想いがいっぱい詰まった家
家族への想いがいっぱい詰まった家
家族への想いがいっぱい詰まった家
家族への想いがいっぱい詰まった家
家族への想いがいっぱい詰まった家
家族への想いがいっぱい詰まった家
家族への想いがいっぱい詰まった家
家族への想いがいっぱい詰まった家 家族への想いがいっぱい詰まった家 家族への想いがいっぱい詰まった家 家族への想いがいっぱい詰まった家 家族への想いがいっぱい詰まった家 家族への想いがいっぱい詰まった家 家族への想いがいっぱい詰まった家 家族への想いがいっぱい詰まった家 家族への想いがいっぱい詰まった家

DATA

所在地
糟屋郡
物件価格
所有済み
リノベ費用
1,330万円
管理費+修繕積立金
非公開
築年月
1998年7月
広さ
75.6㎡
間取り
3LDK+WIC
25年前、新築で購入したお宅をリノベーション。きっかけは結露で悩まされていたことと、経年で設備が劣化して使い勝手が悪くなったこと。それでも、リノベをするか3年ほど悩まれたそうですが、子どもたちの成長を機に踏み切られました。

長く住んだ家だからこそ、課題も明確です。まずは、ご夫婦の住み心地アップを目指しました。一番の不満だったキッチンは、向きを変えることで導線を改善し、さらに収納力も大幅にアップ。特に、カウンター裏のスパイス置き場がお気に入りです。

洗面のタイルや飾り窓、トイレの壁紙や照明など、ご夫婦のこだわりも随所に散りばめられいます。機能的なだけでなく、日々の暮らしがワクワクする空間へと生まれ変わりました。

ちなみに、リビング横の部屋は「留学中の子どもが、自分の部屋がないと帰りづらいだろうから」との親心で配置しています。一緒に住んでいなくても、家族への想いがいっぱい詰まった家が完成しました。
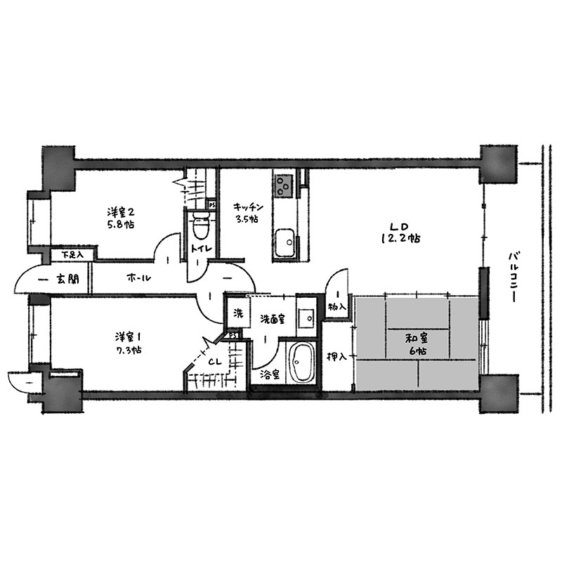
BEFORE
リノベーション前の間取図
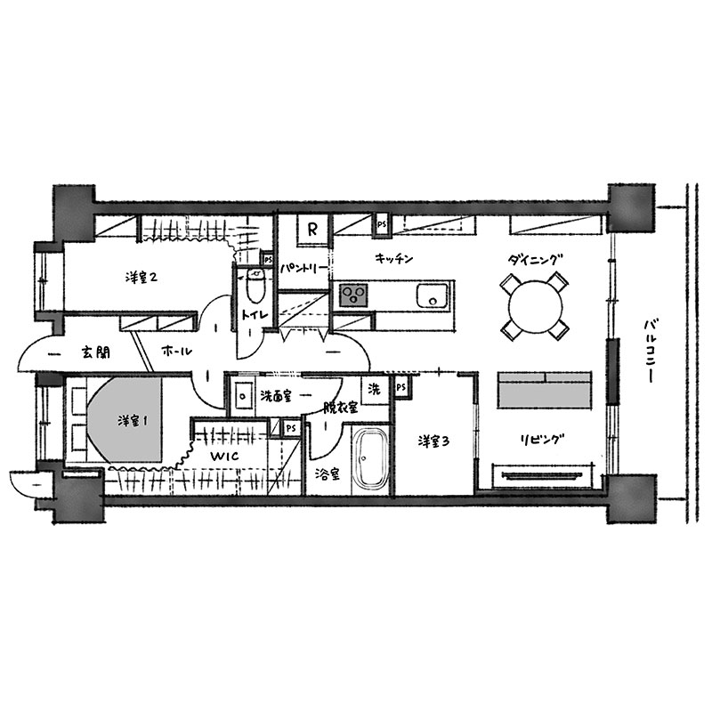
AFTER
リノベーション後の間取図

リノベ後のお宅紹介 アクセスランキング TOP4