福岡県内の事業者でリノベーション実績(大型リフォーム工事)No.1

お電話でのお問い合わせ

tel.092-980-1100

福岡県内の事業者でリノベーション実績(大型リフォーム工事)No.1

マンションで実現した「古民家」の暮らし

DATA

所在地
福岡市東区
物件価格
非公開
リノベ費用
1,550万円
管理費+修繕積立金
14,400円
築年月
2002年2月
広さ
89.27㎡
間取り
2LDK+2WIC
古民家に住むことが憧れだったというご夫婦。しかし、職場へのアクセスや費用を考えると、実際は現実的ではありません。そのため、マンションリノベでその夢を叶えることが今回のミッションでした。

一番のポイントは、リビング天井の「飾り梁」。実際には必要のない梁を、あえて造作しています。また、天井や床だけでなく、キッチンの腰壁やリビングドアまで「本物の木(無垢材)」を使用。温もりがあふれた、伝統家屋のような空間が誕生しました。ご夫婦が選んだビンテージ家具や照明も、空間づくりに一役買っています。

もちろん、回遊導線や広いランドリースペース、在宅ワーク用の書斎など、実用面にもこだわっています。暮らしやすい立地にオリジナリティを実現した、リノベらしいお宅が完成しました。
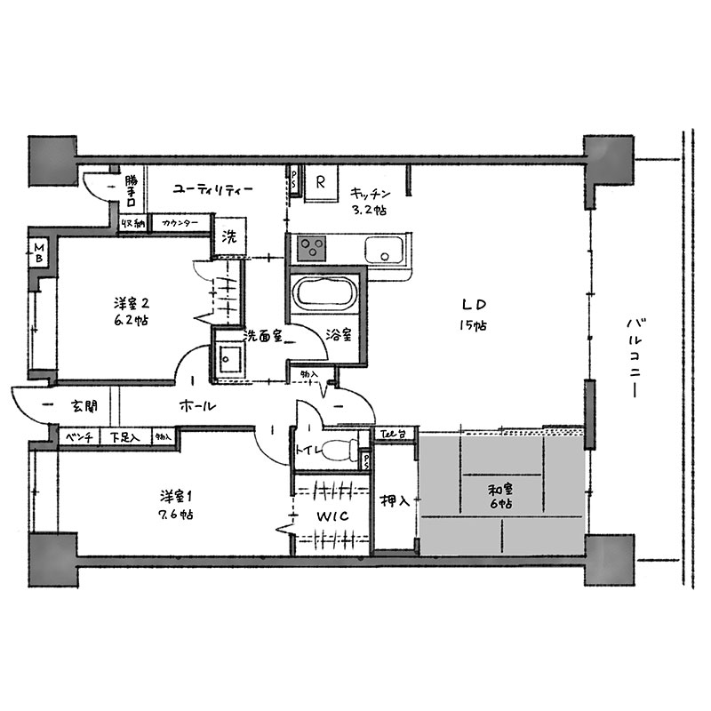
BEFORE
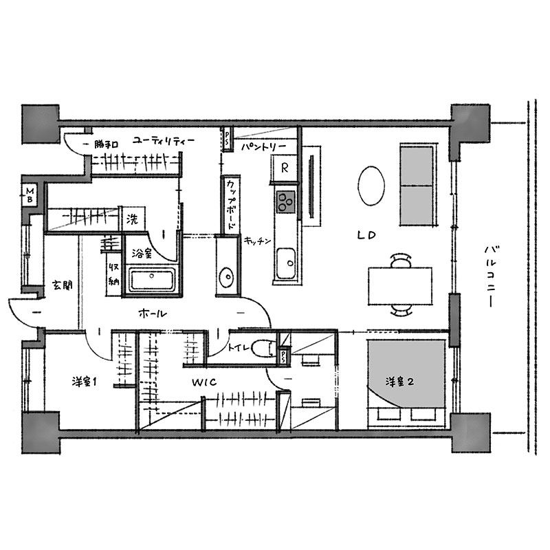
AFTER

リノベ後のお宅紹介 アクセスランキング TOP4