福岡県内の事業者でリノベーション実績(大型リフォーム工事)No.1

お電話でのお問い合わせ

tel.092-980-1100

福岡県内の事業者でリノベーション実績(大型リフォーム工事)No.1

60㎡でも実現した2LDK+WICの暮らし

60㎡でも実現した2LDK+WICの暮らし
60㎡でも実現した2LDK+WICの暮らし
60㎡でも実現した2LDK+WICの暮らし
60㎡でも実現した2LDK+WICの暮らし
60㎡でも実現した2LDK+WICの暮らし
60㎡でも実現した2LDK+WICの暮らし
60㎡でも実現した2LDK+WICの暮らし
60㎡でも実現した2LDK+WICの暮らし
60㎡でも実現した2LDK+WICの暮らし
60㎡でも実現した2LDK+WICの暮らし 60㎡でも実現した2LDK+WICの暮らし 60㎡でも実現した2LDK+WICの暮らし 60㎡でも実現した2LDK+WICの暮らし 60㎡でも実現した2LDK+WICの暮らし 60㎡でも実現した2LDK+WICの暮らし 60㎡でも実現した2LDK+WICの暮らし 60㎡でも実現した2LDK+WICの暮らし 60㎡でも実現した2LDK+WICの暮らし

DATA

所在地
福岡市中央区
物件価格
所有済み
リノベ費用
970万円
管理費+修繕積立金
非公開
築年月
1985年6月
広さ
60.48㎡
間取り
2LDK+WIC
築40年のマンションながら、20年前に一度リフォームをされていたお宅です。それでも、近年は床の傷みやキッチンの漏水に悩まされていました。住み替えも検討したものの、立地を気に入られていたため、フルリノベーションして住み続けることを決意されたそうです。

リノベーションで実現されたいポイントは2つでした。夫婦それぞれの個室を作ること、そしてキッチンを「バーのような雰囲気」にすること。

2つの個室を確保するには、60㎡というコンパクトなサイズが課題でしたが、そこは巧みなプランニングで解決。同時に、キッチンやカップボードを無垢製に統一することで、お好みの雰囲気を実現しました。

奥さまが大切に育てている観葉植物が、新たな生活に彩りを添えています。子育てを終えたご夫婦が、これからの人生を程よい距離感で楽しめる理想の住まいが完成しました。
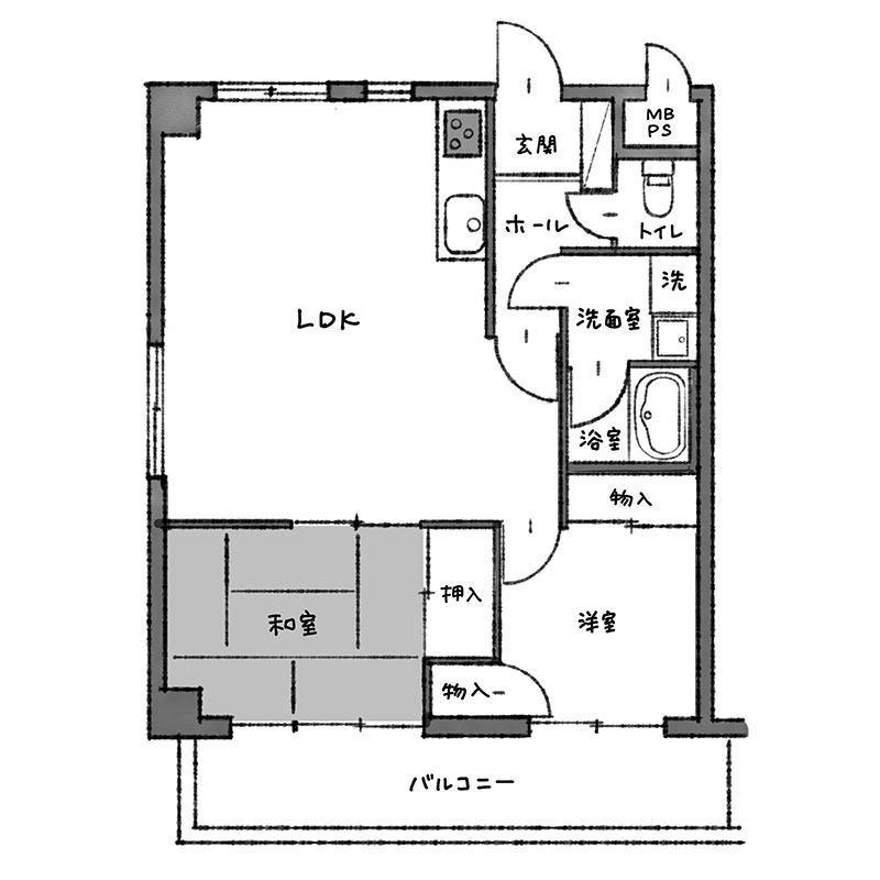
BEFORE
リノベーション前の間取図
AFTER
リノベーション後の間取図

リノベ後のお宅紹介 アクセスランキング TOP4