福岡県内の事業者でリノベーション実績(大型リフォーム工事)No.1

お電話でのお問い合わせ

tel.092-980-1100

福岡県内の事業者でリノベーション実績(大型リフォーム工事)No.1

オトナが落ち着くリノベ空間

オトナが落ち着くリノベ空間
オトナが落ち着くリノベ空間
オトナが落ち着くリノベ空間
オトナが落ち着くリノベ空間
オトナが落ち着くリノベ空間
オトナが落ち着くリノベ空間
オトナが落ち着くリノベ空間
オトナが落ち着くリノベ空間
オトナが落ち着くリノベ空間
オトナが落ち着くリノベ空間 オトナが落ち着くリノベ空間 オトナが落ち着くリノベ空間 オトナが落ち着くリノベ空間 オトナが落ち着くリノベ空間 オトナが落ち着くリノベ空間 オトナが落ち着くリノベ空間 オトナが落ち着くリノベ空間 オトナが落ち着くリノベ空間

DATA

所在地
福岡市東区
物件価格
2,800万円
リノベ費用
1,180万円
管理費+修繕積立金
29,000円
築年月
1997年8月
広さ
80.51㎡
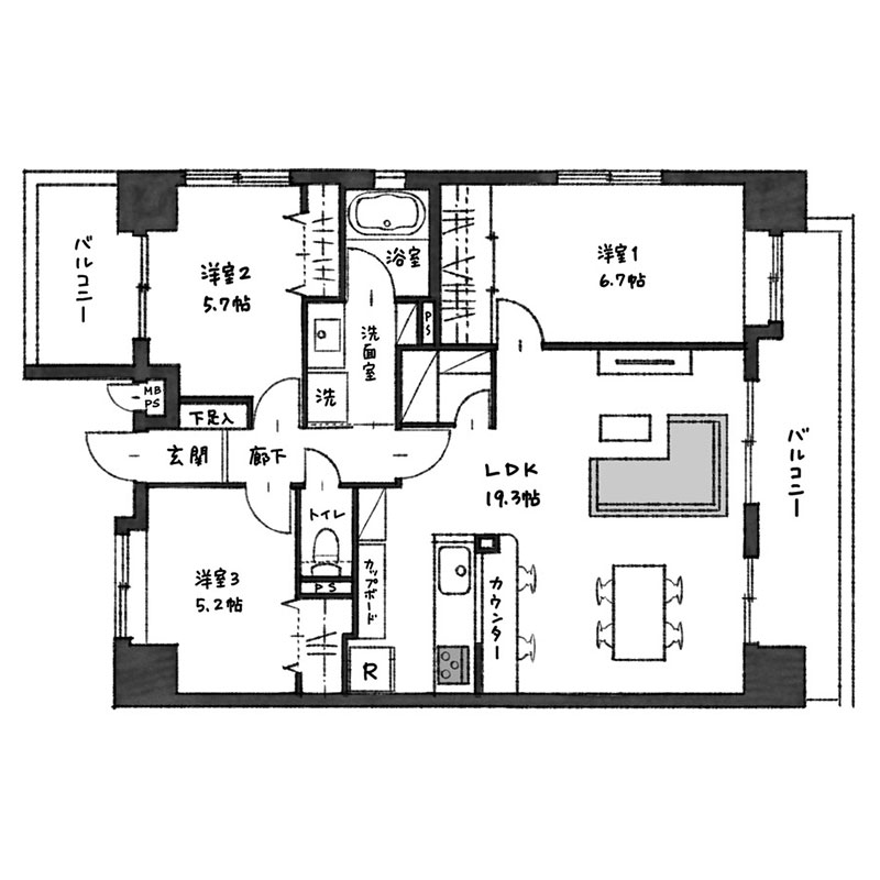
間取り
3LDK
JR香椎駅と西鉄香椎駅の両方まで、徒歩5分圏内という好立地にある築27年のマンション。80.51㎡の4LDKだった空間を、贅沢にも3LDKへとリノベーションしました。

20帖近い広々としたリビングだからこそ、サイズの大きなダイニングテーブルやソファセットも設置できます。フローリングには、足触りの良い突板を採用。広さを活かして、重厚さと落ち着きを感じさせるウォールナットの床材を選定しました。

ハイクラスな雰囲気を持つ空間ながらも、コストはしっかりコントロール。既存の間取りを活かしつつ、住宅設備の選定でバランスを取っています。それでも、実用性は十分に確保。新たにリビング収納を設けるなど、スッキリと見える空間づくりとなっています。

こだわり過ぎないのが「こだわり」とも言えるような、大人が暮らすにふさわしい空間が完成しました。
BEFORE
リノベーション前の間取図
AFTER
リノベーション後の間取図

リノベ後のお宅紹介 アクセスランキング TOP4