福岡県内の事業者で大型リフォーム工事実績 No.1

お電話でのお問い合わせ

tel.092-980-1100

福岡県内の事業者で大型リフォーム工事実績 No.1

ペットと気持ちよく暮らす1LDK

DATA

所在地
北九州市小倉北区
物件価格
680万円
リノベ費用
940万円
管理費+修繕積立金
15,000円
築年月
1985年2月
広さ
約70.5㎡
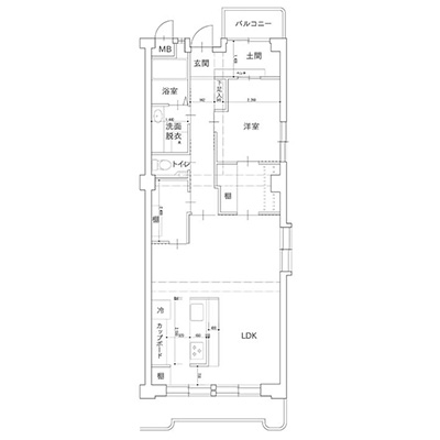
間取り
1LDK+2S
ペットと一緒に広々と暮らせる家を目指した結果、20帖近いリビングを持つお家が完成しました。しかも、生活空間をスッキリさせるために大きな2つの収納スペースを造作したので、かなりゆとりを感じさせる空間となりました。

しかも、お客さまのこだわりでほとんどの壁面に断熱材を入れ、なおかつ全ての室内窓を二重化したので、断熱性能が「新築以上」と言えるほどに高まっています。断熱性能をアップするとエアコンなどの光熱費が安く済みますし、副次的には遮音性能も高まります。

また、今回のお宅でも採用された「玄関土間」は住む人が使いやすいだけでなく、ペットとの生活を楽しむ方にもオススメです。お散歩帰りのワンちゃんの足を拭いてあげたり、トイレスペースとしても役立ちます。

これまでのマンションは「個室の数」が重視されていましたが、これから人口が減少していく時代には「余裕ある空間の使い方」が大切になってくるのではないでしょうか。
BEFORE
AFTER

リノベ後のお宅紹介 アクセスランキング TOP4