福岡県内の事業者でリノベーション実績(大型リフォーム工事)No.1

お電話でのお問い合わせ

tel.092-980-1100

福岡県内の事業者でリノベーション実績(大型リフォーム工事)No.1

昭和テイストな3DKが1LDKに大変身

DATA

所在地
福岡市南区
物件価格
900万円
リノベ費用
618万円
管理費+修繕積立金
12,500円
築年月
1984年6月
広さ
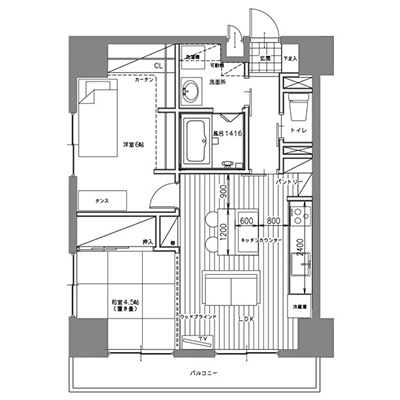
51.0㎡
間取り
1LDK
販売時は「部屋数が多い方が売りやすい」という時代だったのでしょうが、それにしても51平米に3DKをレイアウトするのは無理があったようです。改装前のお宅にはほとんど収納スペースもなく、家電や家具を置いた室内は「モノであふれている」という状態でした。

そんなお宅をお一人で暮らされるお客さまが購入され、余裕を感じさせるレイアウトにリノベーションされました。床にはサンワカンパニーの個性的なフロア材を採用する一方、建具やキッチンはシンプルなテイストで統一することで、全体の雰囲気はスッキリとさせました。

男性のお客さまには小さく感じられるお風呂を1416にサイズアップし、キッチン対面にはIKEA製品をベースにした造り付けの収納兼カウンターテーブルや本棚を造作しました。また、寝室には壁面を利用した大容量のクローゼットを新設しています。

レイアウトを大胆に変えたことで、いくつになってもスッキリと暮らせるヒントがたくさん詰まったお家になりました。
BEFORE
AFTER

リノベ後のお宅紹介 アクセスランキング TOP4