福岡県内の事業者で大型リフォーム工事実績 No.1

お電話でのお問い合わせ

tel.092-980-1100

福岡県内の事業者で大型リフォーム工事実績 No.1

20代のご夫婦が叶えたこだわりの空間

DATA

所在地
福岡市博多区
物件価格
1,350万円
リノベ費用
750万円
管理費+修繕積立金
15,150円
築年月
1992年11月
広さ
65.10㎡
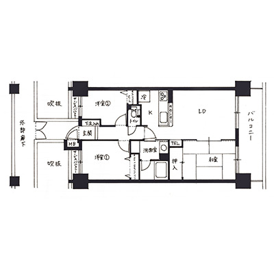
間取り
3SLDK
20代の若いご夫婦が、元気な男の子と一緒に暮らすためにマンションを購入し、素敵にリノベーションされました。

クローズドタイプだった対面キッチンの向きを90度変更し、ダイニングとの距離を近くしただけでなく、子どもが遊ぶ和室スペースにも目が行き届くようになりました。

また、お風呂もマンションとしてはビックサイズの1616に変更、たっぷりの収納空間を作ったことで、子育て世代でも暮らしやすいお家が約2,000万円の予算で完成しました。
BEFORE
AFTER

リノベ後のお宅紹介 アクセスランキング TOP4