福岡県内の事業者で大型リフォーム工事実績 No.1

お電話でのお問い合わせ

tel.092-980-1100

福岡県内の事業者で大型リフォーム工事実績 No.1

家族6人がのびのびと暮らせる79㎡

DATA

所在地
福岡市博多区
物件価格
所有済み
リノベ費用
1,100万円
管理費+修繕積立金
5,000円
築年月
1983年5月
広さ
79.0㎡
間取り
3LDK
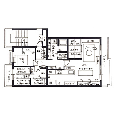
不動産表記としては「3LDK」になるものの、実際は6人家族がそれぞれのプライベート空間をキープしつつ、広々としたリビングスペースを確保した間取りです。

リビングでも子どもたちが勉強しやすいように、それぞれのワークスペースを設置。たくさんの本も置ける仕様になっています。また、キッチンには大きなパントリーと、大家族にふさわしいミーレの食洗機を採用頂きました。

もちろん、小上がりの下部にも隠し収納を設置。リノベーションならではの、家族のこだわりがいっぱい詰まったお家になりました。
BEFORE
AFTER

リノベ後のお宅紹介 アクセスランキング TOP4