福岡県内の事業者で大型リフォーム工事実績 No.1

お電話でのお問い合わせ

tel.092-980-1100

福岡県内の事業者で大型リフォーム工事実績 No.1

コストを意識した「普通」の魅力

DATA

所在地
福岡市城南区
物件価格
非公開
リノベ費用
390万円
管理費+修繕積立金
17,300円
築年月
1996年5月
広さ
82.87㎡
間取り
4LDK
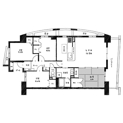
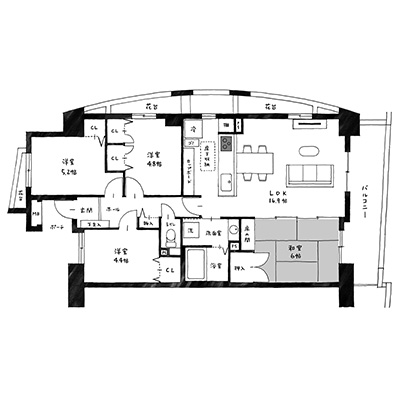
六本松駅から徒歩圏内にあるURの住宅を、間取りをほとんど変えずに改装させて頂きました。

キッチンの吊り戸棚を撤去してリビングを開放的にしながらも、側面に棚を造作して収納力を増やす。クロスや床材を交換する際に、経年で傷んだドアの取っ手をすべて交換する。テレビや電話、コンセントなどの位置を少しでも使いやすい場所に移動する。

そういう細かな箇所に気を配るだけで、家はかなり住みやすくなります。元々が住みやすい間取りであれば、「間取りを変えない」という考えがあってもよいのではないでしょうか。
BEFORE
AFTER

リノベ後のお宅紹介 アクセスランキング TOP4