福岡県内の事業者で大型リフォーム工事実績 No.1

お電話でのお問い合わせ

tel.092-980-1100

福岡県内の事業者で大型リフォーム工事実績 No.1

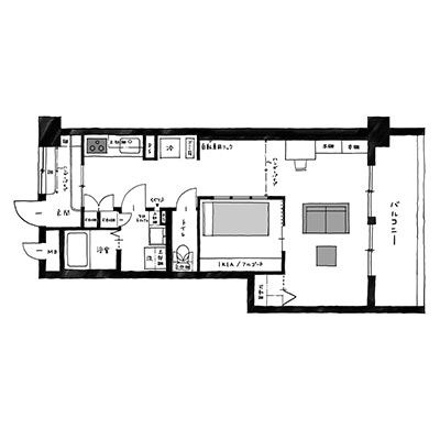
ペットとの暮らしが満喫できる1LDK

DATA

所在地
福岡市中央区
物件価格
1,190万円
リノベ費用
640万円
管理費+修繕積立金
14,650円
築年月
1980年9月
広さ
48.24㎡
間取り
1LDK
48平米というコンパクトな空間でしたが、狭さを全く感じない家へと生まれ変わりました。

玄関に土間を新設し、ガラスの間仕切り戸を配置したことで「明るさ」を確保しています。その上で、寝室を部屋の中央に設置することで「生活空間」を最大化しました。

今回のお客さまは、マイホーム探しの段階からペットとの暮らしを希望されていたので、キャットウォークなどの遊び部分はもちろん、断熱性能の向上や、猫用換気扇など「実用面」も重視した空間になっています。

ここで暮らすネコになりたい…と感じるような、素敵なお家が完成しました。
BEFORE
AFTER

リノベ後のお宅紹介 アクセスランキング TOP4