福岡県内の事業者で大型リフォーム工事実績 No.1

お電話でのお問い合わせ

tel.092-980-1100

福岡県内の事業者で大型リフォーム工事実績 No.1
申し込み受付中

THE POWER OF DESIGN
リノベーションで実現するモダンでゆとりある暮らし

福岡市早良区百道浜3-3-6
シーサイドももちヴェルデコート6番館



福岡を代表するリノベ会社「はぴりの!」と、全国の富裕層から高い支持を得ている「ハイエンド」が協力し、百道浜に建つ築34年のマンションをリノベーション。

本質を意識した「デザインの力」で、新築とは異なるハイグレードで美しい暮らしの場を作り上げました。モデルルームのコンセプトは「THE POWER OF DESIGN」です。

間取りはもちろん、仕様や細部にこだわってノイズレスな空間を実現。シンプルに見える空間ながらも考え抜かれた色使いと空間設計で、サイズ以上のゆとりと心地よさを感じさせます。













しかも、今回の見どころはデザインだけではありません。異なる強みを持つ2社が協力したからこそ、高いコストパフォーマンスを実現しました。ハイグレードな設備に頼らなくても、デザイン力とアイデアで空間と暮らしのクオリティは高まることを感じていただける場となっています。

リノベーションをご検討中の方はもちろん、新築マンションにワクワクしない方にも見ていただきたいモデルルームが完成しました。モダンでゆとりある暮らしの場を、ぜひご自身でご体感ください。

モデルルームの詳細については、特設サイトもご覧ください。
 

THE POWER OF DESIGN
 
【こんな方におすすめ】
・デザイン性の高い暮らしに興味がある方
・これからマイホーム探しをスタートする方
・マイホーム探しでお悩み中の方
・資金計画でお悩み中の方
・リノベーションをご検討中の方

【物件概要】
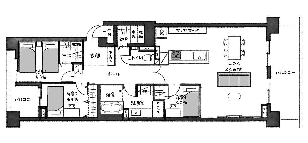
間取り:2LDK+S(3LDKとして使用可)
広 さ:88.99㎡
階 数:10階(SRC14階建)
築年月:1991年7月



【会場・日時】
福岡市早良区百道浜3-3-6
モデルルーム「シーサイドももちヴェルデコート6番館」
地下鉄空港線「藤崎駅」より徒歩11分

(1)10:00~12:00
(2)13:00~15:00
(3)15:00~17:00
※1組ごとの個別見学となります。

公開終了日:2026年4月12日まで


見学申し込みフォーム

イベント名
必須希望日

※上記に希望日をご入力ください(火曜・水曜 休み)

必須希望時間(第1希望)
  • 10:00~12:00
  • 13:00~15:00
  • 15:00~17:00
  • 何時でも構わない
必須希望時間(第2希望)
  • 10:00~12:00
  • 13:00~15:00
  • 15:00~17:00
  • 何時でも構わない
必須お名前
必須ふりがな
必須ご住所
必須電話番号
必須メールアドレス

@hapirino.co.jpからのメールを
受信できるメールアドレスをご入力ください。

必須目的
  • マイホーム探し+リノベーション
  • リノベーション(※改装される物件資料をご持参ください)
主に検討しているタイプ
(マイホーム探しの方のみ)
  • 戸建
  • マンション
  • 両方
参加人数
今回のイベントを何でお知りになりましたか?
  • 検索エンジン
  • Instagram
  • チラシ
  • フリーペーパー
  • 雑誌
  • 知人の紹介
  • 当社からのLINEやDM
  • 他ホームページ
  • Twitter
  • その他
コメント欄(ご質問やご要望などがありましたらご記入ください)

お電話でのお申し込み・お問い合わせ

tel.092-980-1100

電話受付時間 10:00~18:00

個人情報の取り扱いについて

株式会社はぴりのでは、個人情報保護法の趣旨に基づき、 個人情報の適正な取り扱い、及び保護に努めます。取得した個人情報は適切に管理し、業務運営上必要な場合に限り利用することとし、個人情報保護法に定める例外を除いて、本人の同意を得ることなく使用することや、第三者への情報提供・開示を行うことはございません。詳しくはプライバシーポリシーのページをご確認ください。

リノベ後のお宅紹介 アクセスランキング TOP4

dy>