福岡県内の事業者で大型リフォーム工事実績 No.1

お電話でのお問い合わせ

tel.092-980-1100

福岡県内の事業者で大型リフォーム工事実績 No.1
申し込み受付中

団地リノベの最新トレンドを体感!2日間限定の見学会

福岡市南区長住3丁目
長住団地



昭和の時代に一世を風靡した団地ですが、じつは令和の生活者からも大注目を集めています。

築年数は経っているものの、しっかりとした構造で地震にも強い。隣接した建物同士の距離が確保されていて、日照や通風に優れている。広い敷地を活かした、豊かな緑ある自然環境。そして、なによりコスパに優れたマイホームとして、その価値が見直されています。

一方、和室を中心とした大家族向きの間取り、お風呂やトイレなど水回りの使い難さ、断熱性能の低さなど、解決すべき課題があるのも事実です。

しかし、そんなデメリットを解決する力がリノベーションにはあります。福岡県内で大規模リフォーム工事(リノベーション)トップの実績があるはぴりの!だからこそ、団地暮らしの可能性を信じています。



今回、団地リノベに興味がある皆さまに「2日間限定」で公開させていただくのは、南区の長住団地です。ご存じの方も多いと思いますが、賃貸向けの建物と分譲タイプの双方がある団地で、幅広い世代に人気です。

総戸数1,000戸を超える団地ならではのコミュニティも含め、生活に必要な設備がほとんど整った住環境です。















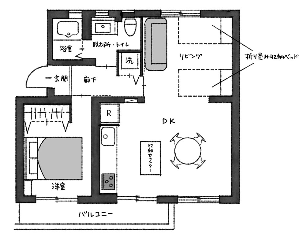
宅内はどんな世代にも受け入れられやすいナチュラルテイストでまとめがらも、毎日のストレスがないよう断熱性能も大幅に改善。オークのフローリングをベースカラーに、格子タイプの扉が各部屋をゆるやかに仕切っています。

一階ならではの利便性の良さを感じながらも、防犯面を意識した対策も取り入れた「いまどき団地リノベ」のトレンドを満載したおしゃれな空間です。

すでに団地に住んでいてリノベーションをお考えの方も、これからマイホーム購入に併せて「団地リノベ」をお考えの方も、経験豊富なスタッフがしっかりご案内させていただきます!



【会場・日時】
福岡市南区長住3丁目「長住団地」
※詳しい住所は、ご予約された方のみご連絡いたします。

2026年3月1日(日)
2026年3月14日(土)
(1)10:00~12:00
(2)13:00~15:00
(3)15:00~17:00

見学申し込みフォーム

イベント名
必須希望日
  • 2026年3月1日(日)
  • 2026年3月14日(土)
必須希望時間(第1希望)
  • 10:00~12:00
  • 13:00~15:00
  • 15:00~17:00
  • 何時でも構わない
必須希望時間(第2希望)
  • 10:00~12:00
  • 13:00~15:00
  • 15:00~17:00
  • 何時でも構わない
必須お名前
必須ふりがな
必須ご住所
必須電話番号
必須メールアドレス

@hapirino.co.jpからのメールを
受信できるメールアドレスをご入力ください。

必須目的
  • マイホーム探し+リノベーション
  • リノベーション(※改装される物件資料をご持参ください)
主に検討しているタイプ
(マイホーム探しの方のみ)
  • 戸建
  • マンション
  • 両方
参加人数
今回のイベントを何でお知りになりましたか?
  • 検索エンジン
  • Instagram
  • チラシ
  • フリーペーパー
  • 雑誌
  • 知人の紹介
  • 当社からのLINEやDM
  • 他ホームページ
  • Twitter
  • その他
コメント欄(ご質問やご要望などがありましたらご記入ください)

お電話でのお申し込み・お問い合わせ

tel.092-980-1100

電話受付時間 10:00~18:00

個人情報の取り扱いについて

株式会社はぴりのでは、個人情報保護法の趣旨に基づき、 個人情報の適正な取り扱い、及び保護に努めます。取得した個人情報は適切に管理し、業務運営上必要な場合に限り利用することとし、個人情報保護法に定める例外を除いて、本人の同意を得ることなく使用することや、第三者への情報提供・開示を行うことはございません。詳しくはプライバシーポリシーのページをご確認ください。

リノベ後のお宅紹介 アクセスランキング TOP4