福岡県内の事業者でリノベーション実績(大型リフォーム工事)No.1

お電話でのお問い合わせ

tel.092-980-1100

福岡県内の事業者でリノベーション実績(大型リフォーム工事)No.1

オトナが恋するマイホーム with トクラス

DATA

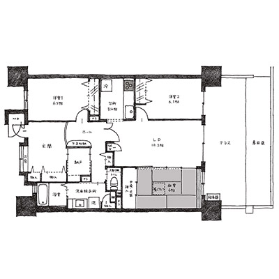
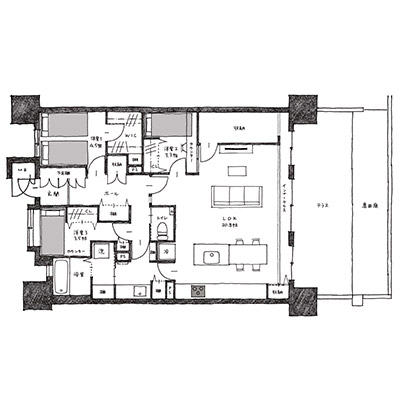
所在地
福岡市博多区
物件価格
2,550万円
リノベ費用
1,430万円
管理費+修繕積立金
21,010円
築年月
1999年6月
広さ
87.6㎡
間取り
3LDK+S
はぴりの!がトクラスの協力を得て作り上げた「Enjoy at Home」の第二弾となるモデルルームです。

アフターコロナを意識し、ニューノーマルな時代に必要な空間デザインや設備をふんだんに取り入れました。その中でも、やはり暮らしの中心はリビングだと想定し、さらにその中心をキッチンと捉え、そこにトクラスの上質なキッチンを設置しました。

贅沢ではなく、上質に暮らすことが求められる時代です。人生80年時代と言われる現代において、50代以降の夫婦の生活クオリティを上げることを重視したモデルルームとなりました。

オトナが恋するマイホーム
BEFORE
AFTER

リノベ後のお宅紹介 アクセスランキング TOP4