福岡県内の事業者で大型リフォーム工事実績 No.1

お電話でのお問い合わせ

tel.092-980-1100

福岡県内の事業者で大型リフォーム工事実績 No.1

信頼が作り上げたインダストリアルな暮らし

DATA

所在地
福岡市博多区
物件価格
1,380万円
リノベ費用
940万円
管理費+修繕積立金
18,410円
築年月
1979年10月
広さ
52.65㎡
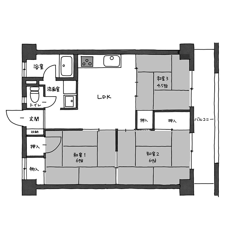
間取り
ワンルーム+S
マンションならではの個性的なリノベーションと言えば、インダストリアルな空間作りです。

若い世代を中心に人気の高いスタイルですが、実際には工事の難易度も高く、生活面でも一部制約があります。それでも、自分が「好き」と感じる空間で暮らせることは、なにものにも変え難い満足感を得られるものです。

インダストリアルなデザインを実現するには、個性的な製品選定や独自の工事技術が必要です。それと同時に、お客さまにも「無骨な仕上がり」をご理解いだだける前提でなければ、私たちも安心して工事を進めることができません。

中古物件の購入においても、リノベーションにおいても、すべて「メリットとデメリット」があります。だからこそ、私たちはそのいずれについてもきちんとお伝えし、お客さまと「信頼しあえる関係作り」をすることが重要だと考えています。

Enjoy at Home
BEFORE
AFTER

リノベ後のお宅紹介 アクセスランキング TOP4