福岡県内の事業者でリノベーション実績(大型リフォーム工事)No.1

お電話でのお問い合わせ

tel.092-980-1100

福岡県内の事業者でリノベーション実績(大型リフォーム工事)No.1

家具のプロとリノベのプロが出会いました

家具のプロとリノベのプロが出会いました
家具のプロとリノベのプロが出会いました
家具のプロとリノベのプロが出会いました
家具のプロとリノベのプロが出会いました
家具のプロとリノベのプロが出会いました
家具のプロとリノベのプロが出会いました
家具のプロとリノベのプロが出会いました
家具のプロとリノベのプロが出会いました
家具のプロとリノベのプロが出会いました
家具のプロとリノベのプロが出会いました 家具のプロとリノベのプロが出会いました 家具のプロとリノベのプロが出会いました 家具のプロとリノベのプロが出会いました 家具のプロとリノベのプロが出会いました 家具のプロとリノベのプロが出会いました 家具のプロとリノベのプロが出会いました 家具のプロとリノベのプロが出会いました 家具のプロとリノベのプロが出会いました

DATA

所在地
春日市
物件価格
930万円
リノベ費用
920万円
管理費+修繕積立金
18,300円
築年月
1974年3月
広さ
62.01㎡
間取り
1LDK+WIC
リノベーションで生まれ変わるのが建物という「ハード」だとすると、インテリアは暮らしに寄り添う「ソフト」かも知れません。そして、毎日の暮らしの中で接点が多いのは、圧倒的にインテリアです。

仮にリノベーション予算を1,000万円とした場合、予算の余裕分をキッチンやフローリングのグレードアップに使うのか、リノベ予算を900万円として家具購入に100万円使うのか。どちらを選ぶかは、お客さまの考え方次第です。

今回のオーナーは博多区にある家具店(ホームシック博多店)にお勤めで、当初から「自分の気に入った家具に囲まれて暮らしたい」という考えがマイホーム購入のきっかけでした。そのため、職場へのアクセスと家具購入を含めたムリのない支払いを意識し、築年数は古いけれどリユースしやすい駅近物件をセレクト。工事内容も「予算内でできること」から逆算しました。

新築では「誰にでも受ける70点の家」が推奨されますが、リノベだと「私が好きな100点の家」を実現できます。インテリアのプロとリノベのプロが方向性をきちんと共有することで、オンリーワンのマイホームが完成しました。

Enjoy at Home
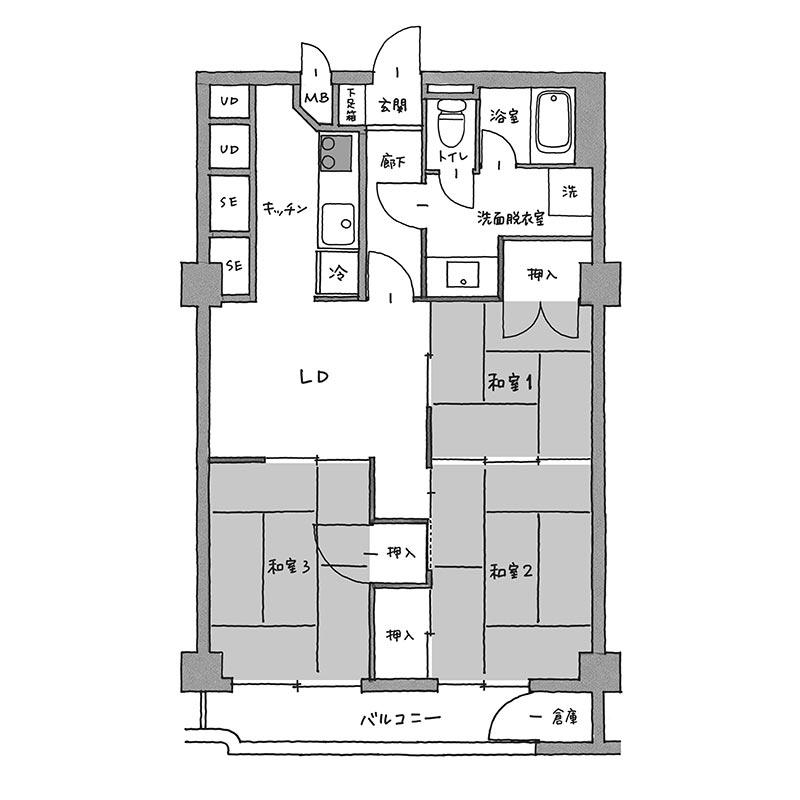
BEFORE
リノベーション前の間取図
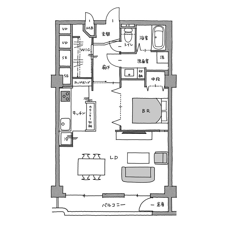
AFTER
リノベーション後の間取図

リノベ後のお宅紹介 アクセスランキング TOP4