福岡県内の事業者で大型リフォーム工事実績 No.1

お電話でのお問い合わせ

tel.092-980-1100

福岡県内の事業者で大型リフォーム工事実績 No.1

一棟ビルを受け継いだ若い家族のマイホーム

DATA

所在地
福岡市中央区
物件価格
所有済み
リノベ費用
2,790万円
管理費+修繕積立金
なし
築年月
1984年
広さ
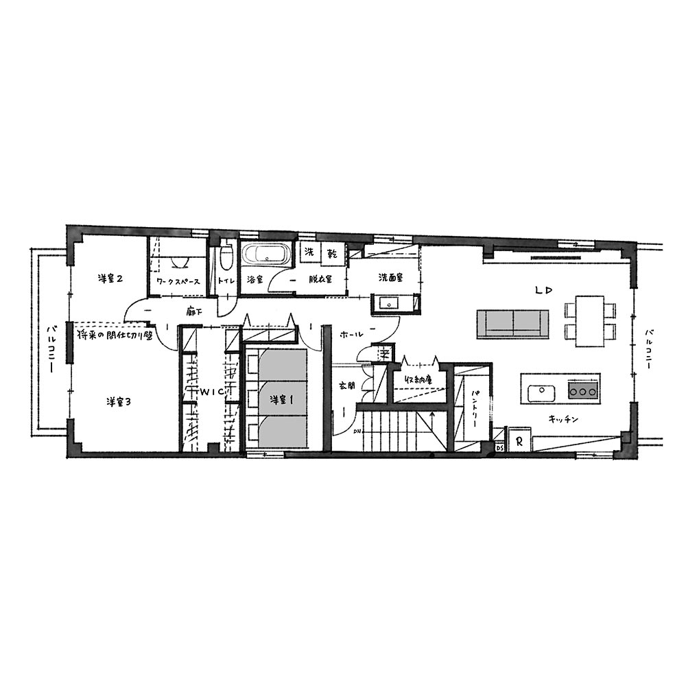
106.4㎡
間取り
3LDK+WIC
お祖父様から受け継いだ一棟ビルの住居部分を、3人のお子さまたちとのびのび過ごせる住まいにリノベーションしました。

広さを活かし、玄関から洗面室、そしてリビングへとつながった回遊導線や、大容量のパントリー&ファミリークローゼット。リビングに造作したワイドなテレビカウンター、アイコンとなる木製ルーバーなど、リノベの醍醐味をたっぷり詰め込んだマイホームとなっています。

今回は一棟ビル内の住居工事でしたので、マンションと戸建て双方のリノベに関する知識が必要な現場でした。外壁面や床、天井、窓などの改修及び断熱工事を行なっただけでなく、解体後に発覚した雨漏り箇所もしっかり補修しています。

戸建てや一棟ビルのリノベでは「構造などの見えない部分」と「サッシや玄関ドアなどの外周工事」に、どうしても費用がかかります。だからこそコストコントロールをしながら、「安心&安全」と「ワクワクするデザイン」の両立を目指しました。

実は、マイホーム探しの初期には新築を検討されていたお客さまです。結果的には当社のリノベを選ばれ、完成後に「仕上がりは120点です!」と言っていただけました。本当に感謝の気持ちでいっぱいです。ご家族全員の笑顔がまぶしい、素敵なマイホームとなりました。

Enjoy at Home
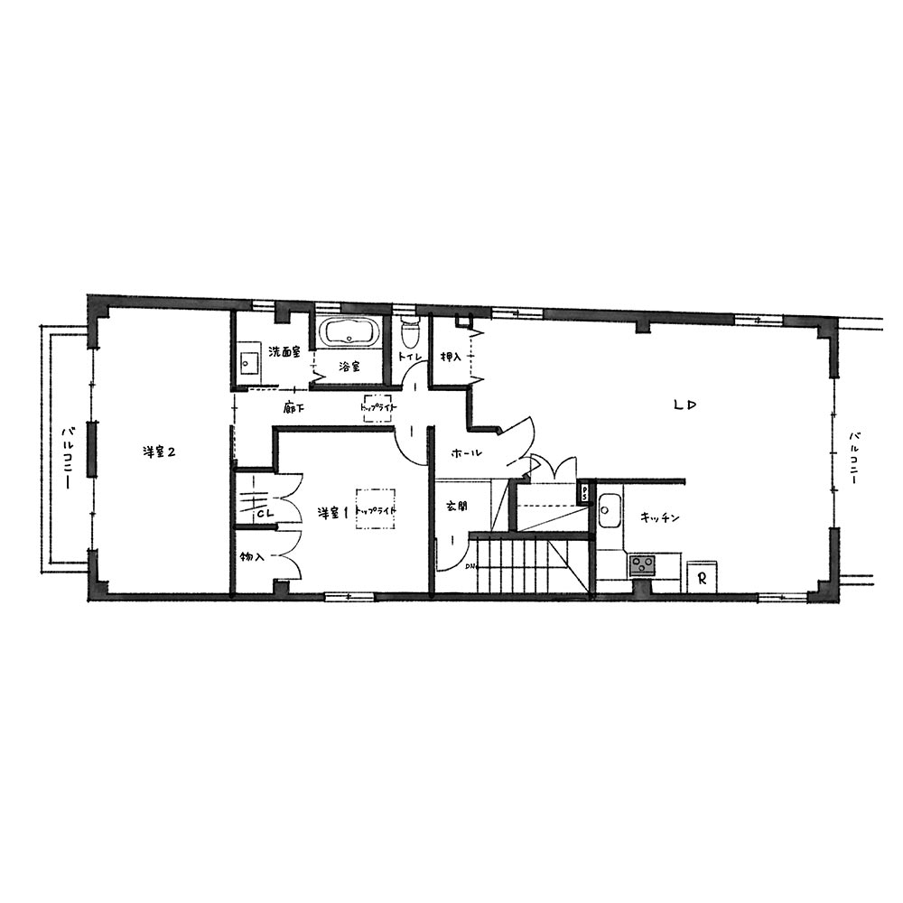
BEFORE
AFTER

リノベ後のお宅紹介 アクセスランキング TOP4