福岡県内の事業者でリノベーション実績(大型リフォーム工事)No.1

お電話でのお問い合わせ

tel.092-980-1100

福岡県内の事業者でリノベーション実績(大型リフォーム工事)No.1

自宅トレーニングが可能な趣味室のある家

DATA

所在地
北九州市八幡東区
物件価格
900万円
リノベ費用
2,000万円(隣屋解体は除く)
管理費+修繕積立金
なし
築年月
1983年3月
広さ
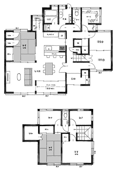
142.84㎡
間取り
5LDK+3WIC
見晴らしの良い丘の上にある戸建を、断熱などにも配慮しつつフルリノベーションさせて頂きました。

戸建ならではのサイズ感を活かし、1階にはご夫婦の趣味室を設置。身体作りもピアノのレッスンも、これからは自宅で楽しめるようになりました。

家族が集うリビングには、元々あった広縁を活かしたサンルームを設置。ダメージ加工を施した無垢フローリングと共に、広い空間のアクセントになっています。

新しく家族の一員となったワンちゃんの成長が楽しみな、優しい家族のマイホームが完成しました。

Enjoy at Home
BEFORE
AFTER

リノベ後のお宅紹介 アクセスランキング TOP4