今週末と来週末のオープンハウスのお知らせです♪

今週末は「高宮オークマンション」でオープンハウスを開催いたします。なんと言ってもこちらのマンション、立地が素晴らしいんです!
高宮駅隣接のボンラパスから徒歩5分くらいで着いちゃう「とっても便利な場所」なんですが、しかも表通りの喧騒から一本裏路地に入った「桜並木通り沿い」にあるので住環境的にも「○」な物件です。

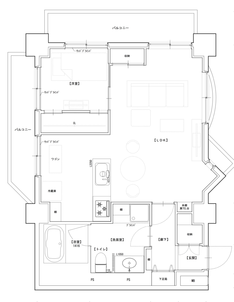
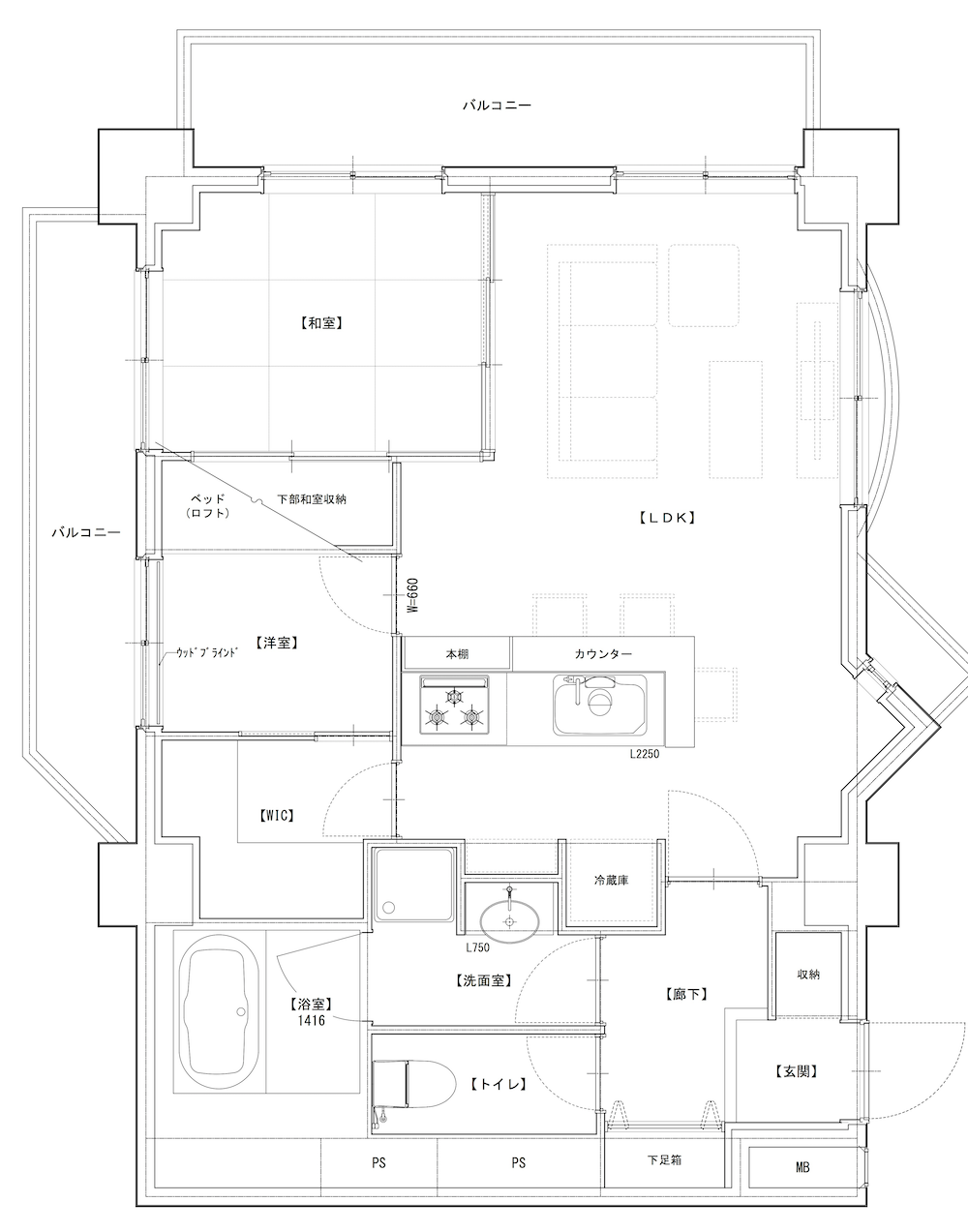
そんなマンションの1室を、一人暮らしの男性が「生活しやすい」間取りへとリノベーションさせて頂きました。まずは、改装前の図面をご紹介します。

部屋数をたくさん取れてはいるんですが、キッチン側とその奥の洋室は隣の建物に面していて、日中でもほとんど光が入らないお部屋だったんです。しかも、収納が「かなり少ない」お家でした。一方で三角窓がある方の洋室は「桜並木がちょうどよい高さで見える、とっても気持ちの良いリビング向きな空間」でした。
そんな「日当たりのよいリビング」を活かすお家にするために、はぴりの!ではお客さまとお打ち合わせしながら10種類近い図面を製作し、様々な間取りのご提案をさせて頂きました。
※ 当社で改装されるお客さまは、どんなにたくさんのプランをご提出しても金額は変わりません。
そんな中から今回は「ボツになった」プランもいくつかご紹介させて頂きます・・・

こちらの特徴は寝室を「寝るだけ」の部屋と割り切った上で、リビングスペースを最大限確保し、さらに隣接する和室を一体として使うことで、来客などにも対応しやすい間取りになっていることです。

続いての間取りは「料理している間も外の景色が楽しめる&テレビを見やすいレイアウト」を意識しました。ムダといえばムダなのですが、広い玄関ホールは「余裕」を感じさせるスペースではあります。

そしてこちらは「シングル」だからこそ想定される、洗面所とトイレを一体にしたプランです。その他のプランと比べてもかなり「広々リビング」になるようデザインされているのが特徴です。
もっともっと「ボツ」になったプランはあるのですが、その他のプランもご覧になりたい方はオープンハウス会場でご確認ください。。。

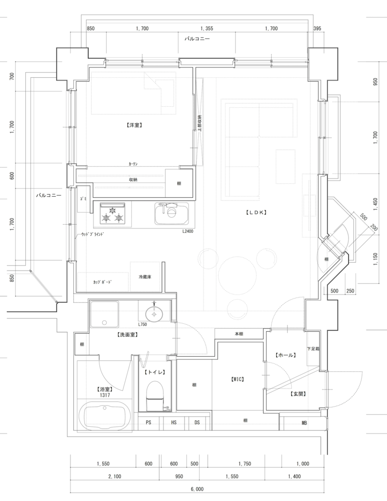
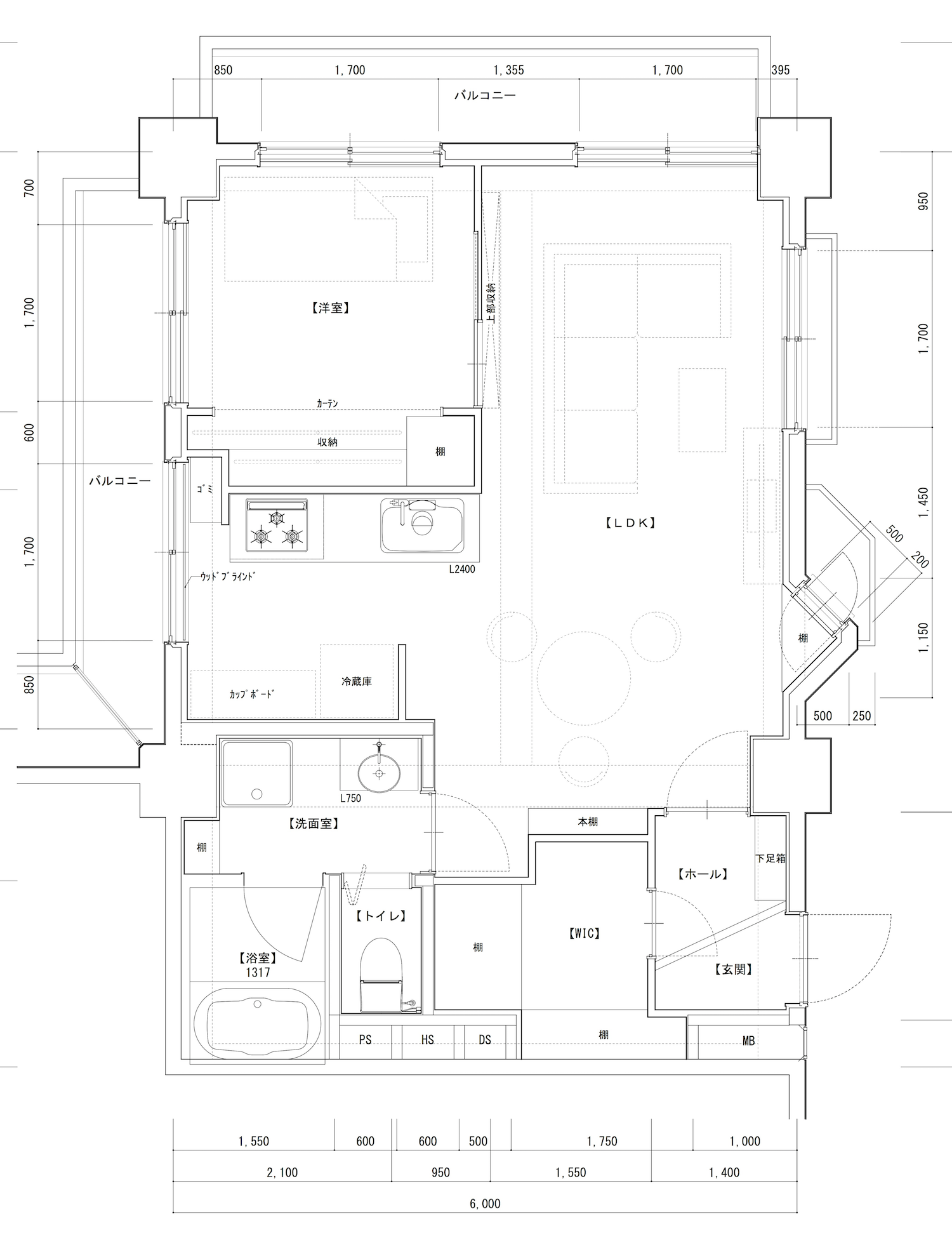
そして、今回実際にお客さまに採用されたのがこちらのプランです。

玄関横に「なんでも収納できる巨大なWIC」を確保することでスッキリ暮らせるようにしつつ、リビング部分からは常に外の景色を堪能できるようにテレビの配置も含めてレイアウトされています。寝室はダブルベッドまで置けるサイズとしているので、2人暮らしまで対応できそうです。

【高宮オークマンション・オープンハウス】
日時 : 2月18日(土)&19日(日) 10時〜18時
場所 : 福岡市南区野間1-6-28
アクセス : 西鉄高宮駅徒歩5分(野間四角近く)
費用 : 物件購入費 900万円 + リノベーション費 800万円(一部家電・インテリアなど含む)
その他費用 : 管理費/9,240円 修繕積立金/なし
備考 : 築年数/1979年7月 専有面積/51.3平米 間取り/2LDK→1LDK
※販売物件ではなく、中古物件を購入してリノベーションした実例としてご覧頂くイベントです。
マイホームの取得費とリノベーション代金、その他の諸経費を含めて1,800万円借り入れたとして、月々のローンは約5万円。それに管理費(しかも修繕積立金も無料/それでも管理はしっかりとされています)を加えても、なんと月6万弱で高宮駅徒歩圏内にある「スケルトンにして改装したフルリノベーションマンション」に住めることになります。
もちろん、立地もとてもいいマンションですので、この仕様(フルサイズのキッチン、無垢材を使用した気持ちの良い床、1317サイズの大きなユニットバス)で賃貸に出すと8〜10万円でもニーズがありそうなお部屋に仕上がっています。将来結婚したり、転勤になっても、賃貸にすれば「資産を増やす家」になってくれるはずです。

ごめんなさい。長くなってしまいましたので翌週の「レジデンス高宮」のオープンハウスのご案内は次回のブログとさせて頂きます。
はぴりの!では今週末と来週末に、高宮エリアで「リノベーションの魅力」を体感できるイベントを二週連続で開催いたします!お家のリフォームやリノベーションを検討中の方はもちろん、これから「マイホーム購入を考えている」方もぜひお立ち寄りください。
・来場記念の「あん食パン」もご用意して、皆さまのお越しをお待ちしています♪
・事前予約の上「初めてのマイホーム探し」や「リフォームやリノベーション」をご相談いただいた方には、当日クオカード2,000円をプレゼント!



























