はぴりの!にお問い合わせを頂くお客さまを世代別に見てみると、20〜30代の「はじめてマイホームを買われる方」がもっとも多く、続いて50前後からそれ以降の「子育てにもある程度メドが立ち、今後は夫婦が気持ちよく日々の暮らしを続けられる家へのリフォームやリノべーション」を検討されている方が続きます。
例えば、お付き合いのある不動産会社さんから同世代向きのリノベプランをご相談頂いたのがこちらのお部屋です。

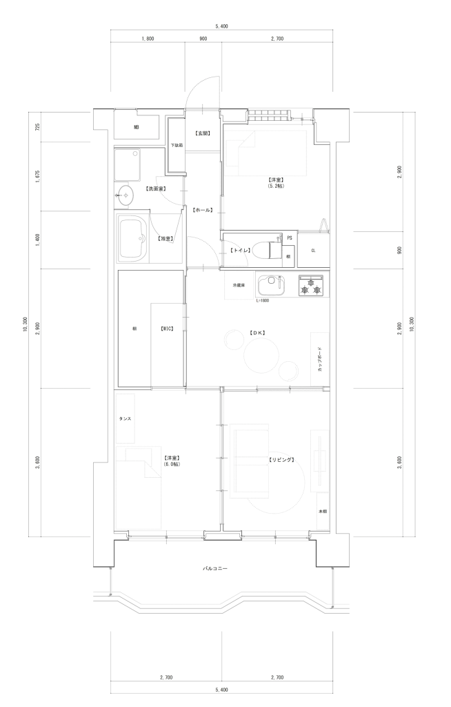
よく見かける「縦長の昭和っぽい間取り」ですね。建築当時としては「部屋数を出来るだけ確保し、4人家族が寝起き出来る和室を日当たりの良いところに配置して、リビングはその真ん中に置いておこう」という一般的な考え方に基づいて作られた間取りです。
しかし、時代は平成28年。子育てが終わったご夫婦二人が住まわれるには、あまり「暮らしやすい」間取りではありません。そんな家に「過度な予算をかけず」にリフォーム(リノベーション)するとしたら、皆さんはどうされますか?
こ希望のポイントは・・・
・夫婦の寝室は「一緒」でもいいけど「別々にも寝られる」ようにしておいて欲しい
・もっとも長く過ごすことになるリビングは広々とした、気持ちの良い空間にしたい
・どの部屋にも「エアコン」は欲しい
こういうご要望をお聞きした上で、考えて見た間取りを2点ご紹介します。

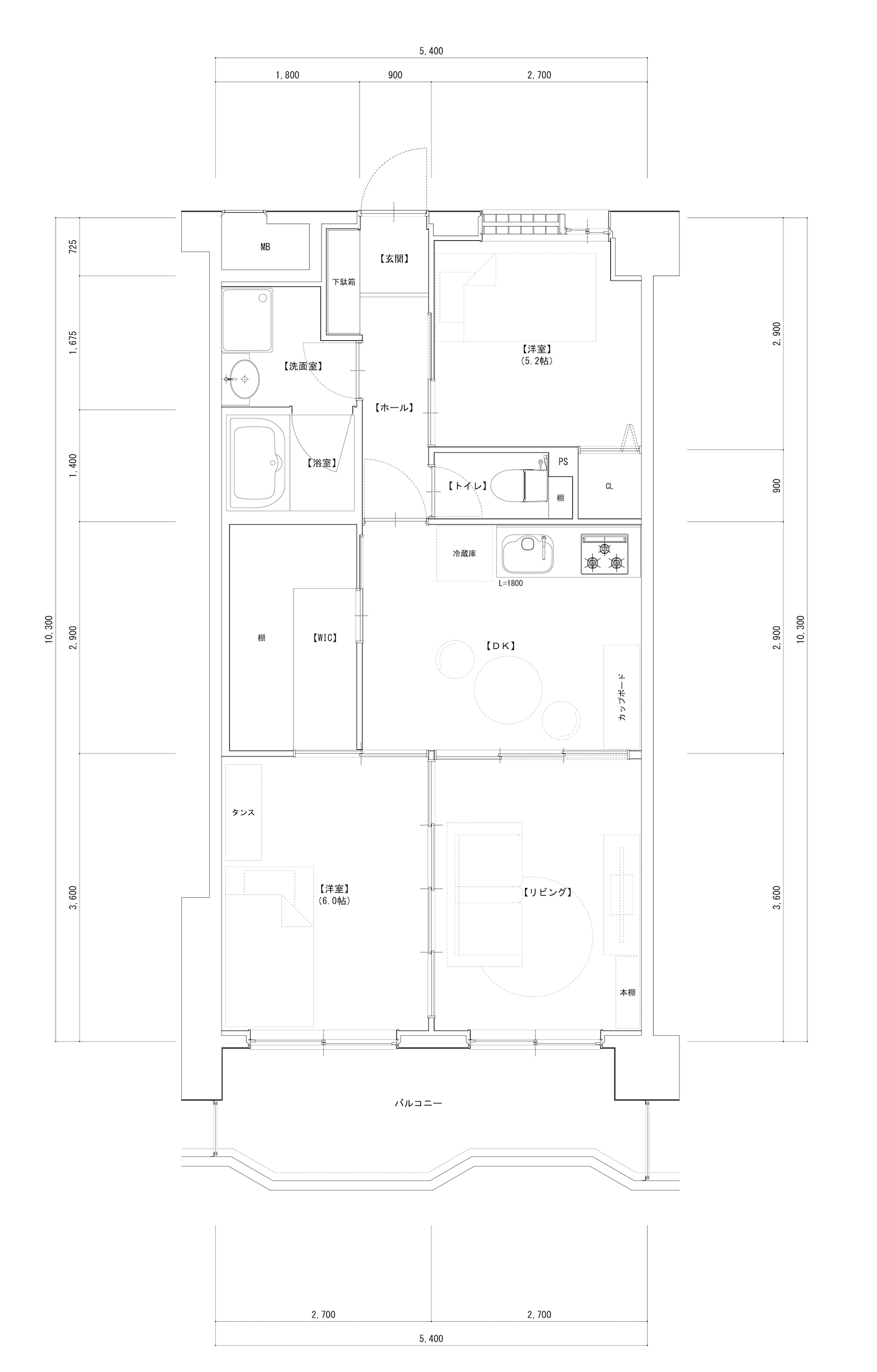
こちらは生活の場(リビング)が「洋室+和室がいい」という方向きのプランです。もちろん宅内は「段差なし」のバリアフリーにして(その分、ちょっと天井高が低くなってしまいます)、扉もほとんどを引き戸(トイレドアも介護でも使いやすい折れ戸タイプ)にしています。若い世代の方がご希望されることの多い「対面キッチン」ですが、主婦歴が長い方の中には「隠したい」というニーズもあるので、今回はセミオープンスタイルにしています。
一方で、こちらの間取りの弱点は「収納が少ないこと」です。そんな弱点を意識したのが次のプランです。

こちらになると巨大な収納庫をリビングの一角に造作していますので、家中の「荷物」をそちらにまとめられます。また、掃除のしやすさや立ち居する時の気楽さから「和室より洋室」を好まれる方も多いので、この間取りでは全部屋を洋室にしています。
どちらのプランも予算は500〜600万円くらいかな・・・という感じです。
※上記の予算だと床材は一般的に使われるリクシルなどの合板、キッチンはクリナップのラクエラなど「豪華すぎず、普段使いにはちょうどいい」設備の場合です。当社モデルルームで使っているような無垢材を多用した仕様にした場合、700万円前後になってくると思います。
ちなみにこちらの物件。福岡市南区三宅にあるのですが、現在も販売中とのこと。

販売されている不動産会社さんとしては「戸建にお住いの方がそちらを売却し、少し小ぶりだけど気持ちよく暮らせる家に住み替えをされる方」とか、「定年後に安心して暮らせる家を買っておきたい方」をイメージした物件でしょうか。
※子どもさんがお一人なら、レイアウト次第でどうにかなりそうな広さではあります。
※間取りを変えず、バリアフリーもあまり意識しない「設備の置き換え」的なリフォームで済ますのであれば200万円代でもどうにかなる…とは思います。
こちらのマンションにご興味がある方は、担当の不動産会社さんに「はぴりの!のホームページを見た」と言ってお電話して頂くと、少しはいいことがあるかも知れませんよ♪



























