今週末にオープンハウスを開催させて頂く、南区にあるお宅(マンション)をご紹介させていただきます。

こちらが販売時の図面です。福岡の都心から少し離れた閑静な住宅地に立つ、3LDKのマンションです。比較的「正方形」に近い形ながら、和室には「光が直接届かない」レイアウトになっていました。
こちらのマンションを気に入られたのは、はぴりの!と一緒にお家探しをされていたご夫婦でした。ご夫婦は在宅でお仕事をされる機会も多く、また趣味に使うスペースもリビングとは別に確保してほしいと言うご要望でした。

全体のイメージイラストがこちらです。生活空間と趣味の空間が、隣り合わせながらゆるやかな仕切られているのが特徴です。どちらのお部屋も、とってもワイドな窓を通じて片縄山から油山までの稜線が一望できる景色が楽しめます。

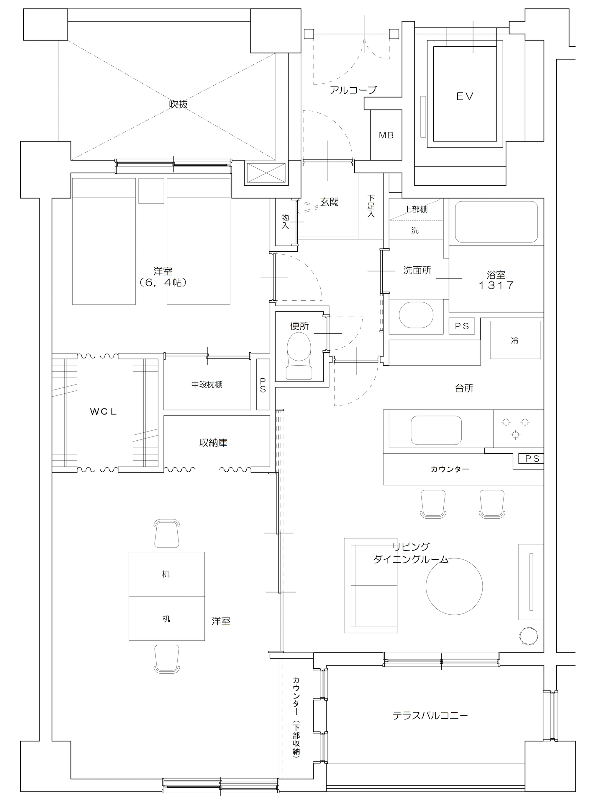
こちらがお客さまに採用頂いたプランです。あまり奇をてらわず、それぞれの居室をしっかりとしたサイズで確保しています。それでも「リビングから寝室」、「寝室から趣味室」、「趣味室から寝室」と、夫婦それぞれの生活リズムに合わせて、お互いがストレスなく暮らせるような配線になっています。

クロスや建具なども一見ベーシックに感じられる色目ながら、色調をとても考えて選定されています。コストをしっかり意識されながらも無垢素材を使用した贅沢なフロアー材を使用するなど、予算管理的にもメリハリが効いたお家になっているのが特徴です。
デザインに関係するお仕事をされているお客様だからこそ「シンプルで、飽きのこない家づくり」の大切さを知っておられたのかも知れません。
【オープンハウスのご案内】
日時 : 2017年4月15日(土)、4月16日(日) 10時〜18時
場所 : 福岡市南区花畑2-32-5 ガーデンライフ長住南
特徴 : ご夫婦ふたり暮らしに必要な部屋をミニマムに、しかし大胆にレイアウトしたお家です。広さ70平米のマンションを2LDKにレイアウトすることで、とっても広々とした空間が確保できました。夫婦に必要な「程よい距離感」で暮らせるマイホームに仕上がっています。
費用 : 購入時の物件価格/1,180万円 リノベーション費用/620万円 月々の支払い/49,976円(1,800万円借入、35年払い、金利0.90%の場合) 管理費+修繕費/11,680円

人生において様々な経験をした世代のお客さまだからこその「落ち着き」と「ゆとり」を感じさせるお家です。ご来場記念の品もご用意しています。どうぞお気軽にご来場ください。
※ オープンハウス会場で「初めてのマイホーム選び&リノベーション相談会」へ参加をご希望される方は、事前に当社までご連絡をお願いいたします。



























