急速に核家族化、単身化が進んでいる現代の日本において、間違いなくニーズが高まるのが「都心にある広めの1LDK」です。
これまで建てられたマンションにも20平米台の「学生向けワンルーム」はあったものの、その次のサイズとしては50平米前後の「2LDK」になってしまうことがほとんどでした。
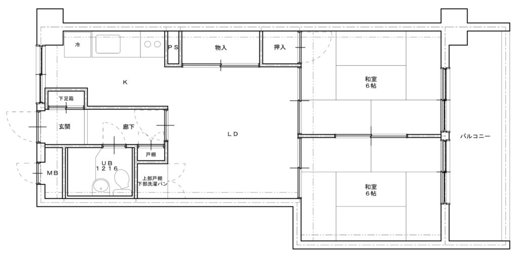
上記が今回オープンハウスを開催させて頂くお宅の「改装前図面」ですが、広さは48平米あるものの、現代の暮らしにはマッチしていません。生活の中心が和室だった時代の名残が強いレイアウトで、しかも使い勝手の悪い3点式ユニットバス(お風呂とトイレと洗面スペースが一体となっているタイプ)のお部屋でした。
それでも、物件自体はとても魅力的なマンションでした。薬院大通駅から徒歩4分、管理体制もしっかりした「ペット可」物件です。近隣には病院やスーパー、コンビニなども点在し、若い世代から高齢者まで、どんな世代にもマッチしそうな立地でした。
とは言え、築年数は40年目前の築古物件でしたので、今回のリノベーションでは内部をスケルトン状態まで解体し、改めて配管や配電も含めて新設させて頂きました。
改装費はおよそ680万円です。この費用の中には解体費、2ヶ月間の工事費、家電品などを除くすべての住宅設備費、そして当社のデザインと設計料も含まれています。
どうしても狭い物件の方が平米単価は上がってしまいがちですが、それでも物件費や諸経費と合わせておよそ2,000万円で、福岡を代表する都心部に「オンリーワンのマイホーム」が手に入るのは「中古物件+リノベーション」ならではのメリットです。
購入する物件を確定後、たくさんのプランを提出し、お客さまと一緒に間取りや設備を考え、そして実際に工事をさせて頂く期間はおよそ5ヶ月にも及びます。一年のおよそ半分にもなる期間をご一緒しながら、お客さまが理想とされるマイホームを作るお手伝いをさせて頂けるのは、私たちにとっても大変光栄なことです。
そんな工事もいよいよ終盤。今回はオーナーさまのご協力の元、これからの時代にマッチしたステキなお部屋で、2日間限定のオープンハウスを開催させて頂きます。
【オープンハウス概要】
会場 : 福岡市中央区薬院4-18-26 サンビューハイツ浄水
(部屋番号はご予約時にお知らせ致します)
日時 : 2019年4月13日(土)、14日(日)10時〜17時
予約 : 092-980-1100 (はぴりの!福岡本店)
備考 : オープンハウス会場では「ご自宅のリフォームやリノベーション」、または「マイホーム探し+リノベーション」についての個別相談を承ります。
※ WEBからのご予約を希望の方は、こちらからお申し込み可能です。

今回のオープンハウスは「都心部のコンパクトなお部屋」での開催となりますが、実際には様々なタイプのお宅でリノベーション工事が進行中です。
将来に向けてマイホーム探し中の方も、理想のマイホームへと改装を検討中の方も、ぜひ「将来の生活がハッピーになるリノベーション」の魅力に触れて、今後の参考にされてみませんか?
上記の日程が合わない方のために、翌週も追加イベントをご用意しています。ぜひこの機会に「プロのホンネ」が聞ける、はぴりの!のオープンハウスにご来場ください。



























