先週末に野間で開催させて頂いたオープンハウスには、2日間で50組以上のお客さまにお越し頂きました!本当にありがとうございます。
そして、今週末もステキにリノベーションしたマンションで、オープンハウスを開催させて頂くことになっています♪

こちらのマンションを購入されたのは、学生時代からお付き合いして、1年ほど前に結婚されたご夫婦です。とっても仲の良いお二人が選ばれたお家は、高宮通り沿いから少し山手に入ったヴィンテージマンションです。

築年数は確かに経っているものの、住んでおられる方の「愛情」をたっぷり受けたステキなマンションです。そんなマンションの1室を、生活しやすい間取りに更新されました。

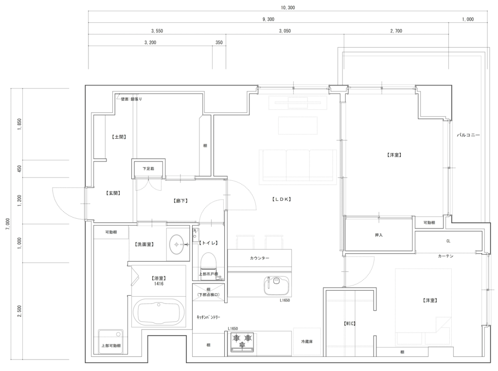
こちらは更新後の図面なのですが、まず玄関を入ると、左手にとっても広い玄関収納があります。いまはまだ生まれていない子どものベビーカーを置いても、余裕を感じさせるスペースです。
リビングに通じるかわいいドアを開けると、12〜13畳のリビングスペースが広がります。キッチンには人気上昇中の「ニの字型対面キッチン」を設置しています。買取再販のマンションでは省スペースのために「L字キッチン」を入れられることも多いようですが、実際には片側が2400以上ないと「L字」としては使いにくい(作業スペースが確保できない)ため、あまりお勧めはしていません。

そのキッチンにカウンターをつけていますので、ご夫婦二人の間はここで食事してもいいですし、将来は子どもがお絵かきや勉強をする場所にもなると思います。
ただし、子どもがまだ生まれていないご夫婦ですので、その子に個室が必要になるとしてもまだ10年以上も先。そのために、いまから面積を割いて1部屋をキープしておくのは「もったいない」と私たちは考えました。
そこで、隣の洋室との間仕切り度は「3枚引き込み戸」として、しばらくの間は17〜18畳の広々リビングとして使えるようにレイアウトしています。
夫婦の寝室はそんなに広くないものの、お二人共通の趣味であるマンガをたくさんおけるように、ベッド置き場の背面には造作仕様の本棚を設置。ご夫婦それぞれのお洋服置き場も確保しています。

改装前には「日が当たらない洋室」と「クローズドなキッチン」だった間取りが、とっても広々とした新婚のご家族向けのお家になっています。
【レジデンス高宮・オープンハウス】
日時 : 2月25日(土)&26日(日) 10時〜18時
場所 : 福岡市南区高宮2-6-15
アクセス : 西鉄高宮駅徒歩10分(お菓子の富貴・高宮店の近く)
費用 : 物件購入費 1,180万円 + リノベーション費 850万円
その他費用 : 管理費/12,700円 修繕積立金/10,000円
備考 : 築年数/1972年3月 専有面積/70.6平米 間取り/2LDK→2LDK+S
こちらのお宅、総額2,000万円借りたとして月々の支払いは55,000円。加えて管理費と修繕費がかかるので、支払い総額はおよそ78,000円です。近隣の新築は4,000万円以上ばかりのエリアなので、仮に4,000万円(物件費以外で300万円程度はかかるはずです)で購入したとすると、ローンの支払いは120,000円。その他を入れると150,000円。これだと、賃貸に出したとしても「リターンで黒字になる」ことは望めそうにありません。
20代のご夫婦に子どもが1人生まれるのか、2人になるのかはまだ正直なところ分かりません。しかし、こちらの家であれば、子どもに個室が必要となるまで気持ち良く暮らせるだけでなく、それまでにローンの支払い自体も1/3以上終了することになります。
その時点で、子どもがたくさんになっていたら「他の家を借り」てもいいし、収入が順調に伸びていたら「次の家を買う」という選択肢も出てきます。
今回のご夫婦は20代の新婚のお二人ですが「若い」ということは資産形成にとってとっても大きなメリットなんです。
立地が良くて、賃貸化しやすい場所の物件を「賃貸の支払額と同額程度で買える(借りられる)」のであれば、「子どもが生まれる前にマイホームを買う」という選択肢は、実はとっても経済合理性にあっています。

はぴりの!では、それぞれの世代の方にあった「マイホームの選び方」や「リフォーム&リノベーションのあり方」があると思っています。
オープンハウスではそんなご相談から、ただ普通に「リノベしたお家を見てみたい」という方まで、たくさんの方のご来場を今週末もお待ちしています♪



























