2ヶ月半にわたって工事をさせて頂いた「笹の台団地」のリノベーション工事が、間も無く完成します。
構造上の問題もあり、管理組合の皆さまとの打ち合わせも難航した現場ですが、お客さま、現場の職人さんたち、そして近隣住民の皆さまのご協力もあって、いよいよステキなお家へと仕上がってきました!
改装前のレイアウトはこのような「ザ・団地」スタイルのお宅で、いまの時代に合った暮らしをするには制約を感じざるを得ない間取りでした。また、築42年という年式もあり、水回りを中心に全体的な傷みも激しく、ある意味「フルリノベーションに最適」な物件でした。
改装前の写真を見て頂くと「マイホームとしての購入をちょっと躊躇しちゃいそう」な物件ですよね(笑)
しかも、今回のような「団地」は壁式工法のため、思い通りに壁を撤去することができません。しかし、それでもメリットとしてあげられるのは広い敷地と日当たりの良い環境、そして比較的お手頃な価格です。
今回のお客様は販売価格650万円だった中古の団地を購入し、850万円かけてリノベーションされました。諸経費100万円を足しても、総額は1,600万円。銀行から全額借り入れた場合、35年払いであれば月々44,423円(金利0.900%の場合)となります。
これに修繕費と管理費を足しても、月々の支払いは55,423円。駐車場は別途6,000円かかりますが、この支払いで、今回のようにカッコよくリノベーションしたお家に住めることになります。生活費の余力を「旅行や趣味に当てられる」って、子育て世代にとってはすごく魅力的ですよね。
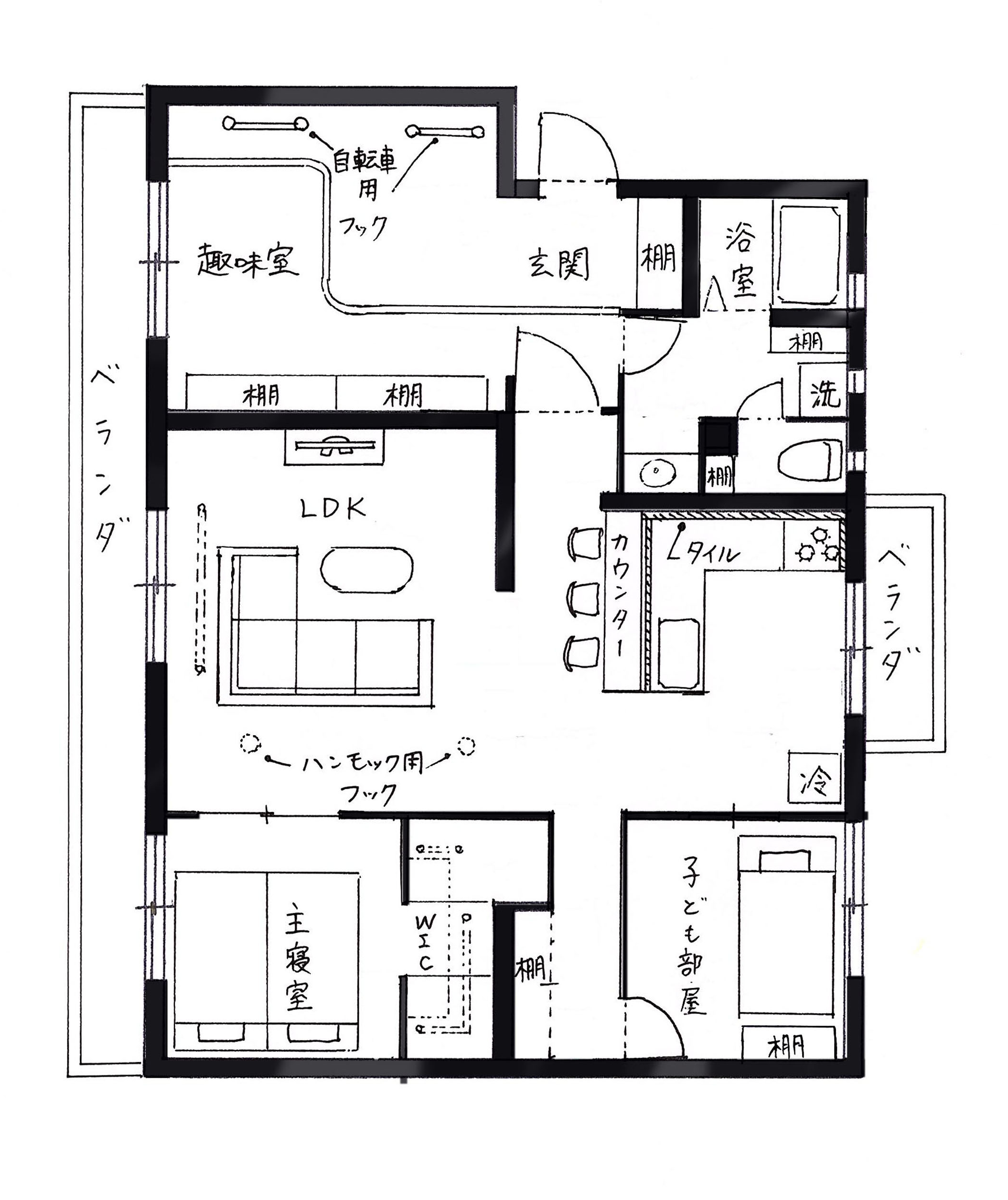
今回のお宅、玄関を開けたらとっても広い土間がドーンと広がっています。団地とは信じられないような開放感を感じさせる趣味室は、全体をモルタルでラフに仕上げたカッコいい(ちょっとワイルドな)オトコ部屋です。自転車が趣味のご主人が、複数台の自転車をラフに飾り、手入れがしやすいように改装されています。
そこからオリジナルカラーに塗装したリビングドアを抜けて室内に入っていくと、奥さまがこだわられたL型の対面キッチン&カウンターがバランスよくレイアウトされています。キッチンをコンパクトにまとめた一方、リビングは広々とスペースを確保されており、無垢材のフローリングがとっても素足に気持ちの良い空間です。
「田の字型」に作られている団地の特性を生かして、その奥にご夫婦のお部屋と子ども部屋を配しています。縦長タイプのマンションでは難しい採光も、各室に窓を配置できるためとっても明るいプライベート空間を確保できました。居室の建具には、オークションで落札したアンティークな引き違い戸も使用されています。
男性が好みがちなカッコいいテイストと、女性が好む優しい空間がリビングドアを境にほど好くマッチした「フルリノベーションらしいお家」がまもなく完成です!
お家探し中の方にとっては「総額1,500万円でこんなお家が買えるんだ!」という感動と、リフォーム&リノベーションで悩まれている方には「いっぱい悩んだら、この予算でここまで出来るんだ!」という気付きがいっぱいのオープンハウス。いよいよ今週末の開催ですので、お見逃しなく♪
【オープンハウス概要】
場所/福岡市城南区長尾2-27-7 笹の台団地7号棟(部屋番号はお問い合わせください)
▶︎管理組合の定めにより、現地に看板の設置ができません。部屋番号についてはお問い合わせ下さい。
▶︎駐車場はありません。近隣のコインパーキングをご利用ください。
日時/2017年10月7日(土)、8日(日) 午前10時〜午後5時30分まで
現地では「具体的なリフォーム&リノベーションのご相談」や、これからマイホームを探される方にぜひ聞いて頂きたい「失敗しない!初めてのマイホーム探し相談会」を開催しています。
どちらも事前予約者の方にクオカード2,000円をプレゼント(過去に本イベントにご参加の方、業者の方は対象外です)しています。ご予約の上、お気軽にご参加下さい。
もちろん「見てみたいだけ」の方も大歓迎です。しかも、同様の他社イベントでは入場を制限されることの多いインテリア&建築系を勉強中の学生さんも、リノベーションにご興味がある不動産業者の方もお気軽にご来場ください♪
お問い合わせ ▶︎ ハッピーリノベーション(本店) 092-980-1100
※ またはこちらからもご予約いただけます。



























