モルタルの持つ無機質さと、ラワン材の自然な風合いが程よくマッチしたお部屋がまもなく完成します。
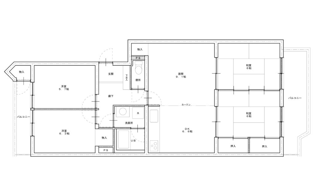
とっても広々とした空間に見えますが、それもそのはず。下の図面で言うと右側に記載されているDK(キッチン)と居間、和室2間が1つの空間になっているんです。
そのため、新しいLDKはなんと30帖という巨大な空間。元々は4LDKだった85平米のお部屋が、1LDK+WICへと部屋数を大幅にダウンサイジングされています。
実はこちらのお宅ほどではないにしても、最近のリノベーションでは部屋数を減らす方が増えています。その理由はこちらを見ていただければ一目瞭然です。
上記は厚生労働省が平成30年に発表した「グラフで見る世帯の状況」からの抜粋です。現在の日本で最大のセグメントは2人世帯、続いてが1人世帯となっており、この2つの世帯層だけで全世帯の半分程度を占めています。
一方、こちらのマンションが建った1980年ごろの世帯構成では、ダントツで4人暮らしが多かったことを考えると、時代とともに「マイホームに求められる部屋数」が変化していることが分かります。
人口減少自体は大きな社会問題ですが、これまで大切に暮らされてきた住まいを活かして、現代の暮らしにあった空間へと更新することができれば、社会問題の解決にも繋がるはず。SDGsな社会の実現に寄与できるということは、リノベーションの隠れたメリットの一つです。
無機質でモルタライクなテイストが好きな方、ラワン合板を使ったカッコいい空間づくりに興味がある方、30帖の広々リビングを体験したい方。そんな「リノベ上級者」向けの空間を体感いただけるのは、下記の2日間のみ。ご興味のある方は、お早めにご連絡ください。

【限定公開/オープンハウス概要】
日時 2020年2月15日(土)、16日(日) 10時〜17時
場所 福岡市早良区飯倉(住所はご予約の方にのみお伝えします)
・ 会場に駐車場はありません。公共交通機関でご来場いただくか、ご自身でコインパーキングなどをご利用ください。
・ 今回のオープンハウスは、完全予約制となっています。当日のご連絡では対応できない場合があります。
・ 現地に家具は設置していませんので、リノベ済みの「空間」を体感いただく会場となっています。



























