中央区の人気駅から「リアル」に歩いて3分という好立地のマンションに、オークの床材がとっても印象的なマイホームが誕生しました。
決して「カントリー」でもなく「和モダン」でもなく、いまどきのカッコいいウッディーな空間に仕上がっています。
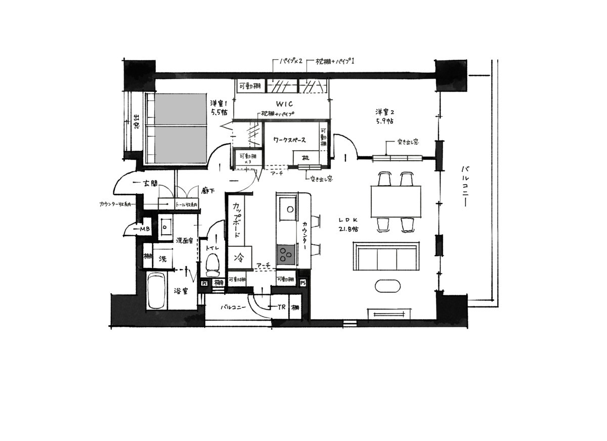
リノベーションする際の設備選定で、つい目が行きがちなのはキッチンやお風呂といった住宅設備ですが、実は一番「家全体の印象」に影響を与えるのは床とクロスです。
今回のお宅でも、床材を1番先に選ぶことで全体の方向性を決めつつ、各設備やクロスなどを選定させて頂きました。もちろん、進め方としては逆の場合もあります。個性的なキッチンやお気に入りのダイニングテーブルが似合う空間を意識して「床を選ぶ」というパターンです。
いずれにしても、お客さま自身が全体のデザインに対する「考え方」をしっかりと持っておくと、出来上がったお家がスッキリすると思います。
それと同時に、私たちとしてもお客さまの好みを早めに把握させて頂くことで、床材や住宅設備の選定がスムーズになってきます。
立地と管理が優れた中古物件をリノベーションすることで、近隣の新築と比較すると半額から2/3の価格で「将来の資産になる、私らしいマイホーム」が完成します。
今回は、そんな素敵な暮らしを一足先に実現されたお客さまのお宅をご紹介させて頂きました。




























