はぴりの!がデザインし、今月中の竣工に向けて工事をさせて頂いてる2軒の物件で、それぞれのオーナー様から「オープンハウス」のご了解を頂きました♪ 本当にありがとうございます☆
リノベーションにご興味がある方もない方も(笑)、この機会に「ものは試し」で内覧されてみませんか?平均的な新築マンションでは絶対に「あり得ない!」レベルの、完全フルオーダーのステキなお宅に仕上がりそうです♪
今回はご自由に物件を「見るだけ」でもいいですし、いつもはサンワカンパニーさんで行っている「マイホーム選び&リノベーション説明会」を現地で開催することも可能です。
それでは、さっそく二軒の物件を簡単にご紹介します。
まず最初は、以前からブログでもご紹介している南区清水町の「東峰マンション清水2」です。

元々は4LDKだった広いお宅を、旧オーナー様が3LDKに改修されていました。さらに今回、こちらの物件を購入されたYさまご夫婦が余裕の2LDKに改修されています。

上記のデザインプランから変更になった点もあるのですが、広いリビング、入ってすぐの玄関土間フリースペース、そして寝室から洗面&トイレまでのオリジナルな導線などが「リノベーションならでは」のオトナ住まい仕様になっています。
また、こちらのお宅ではとっても深みのある濃い色目の床材を使用されているので、絶対に既存マンションでは醸し出すことの出来ない「色気」を感じられる物件です。
☆内覧会☆
日時 2015年6月13日(土) 10時〜17時
場所 福岡市南区清水
※ ご興味のある方は、必ずメールかお電話で事前予約をされてからお越し下さい。
そして、続いてご紹介するのは中央区荒戸・・・と言いながら、実際には西公園や唐人町商店街から徒歩圏内の「ニューライフ西公園」です。

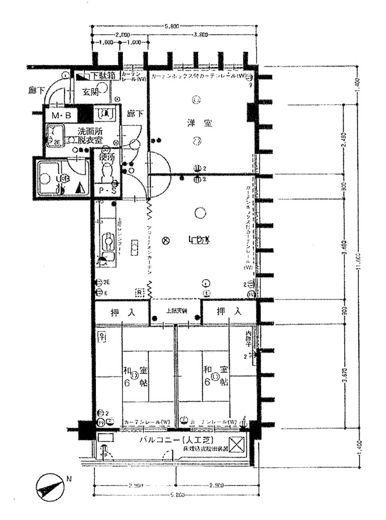
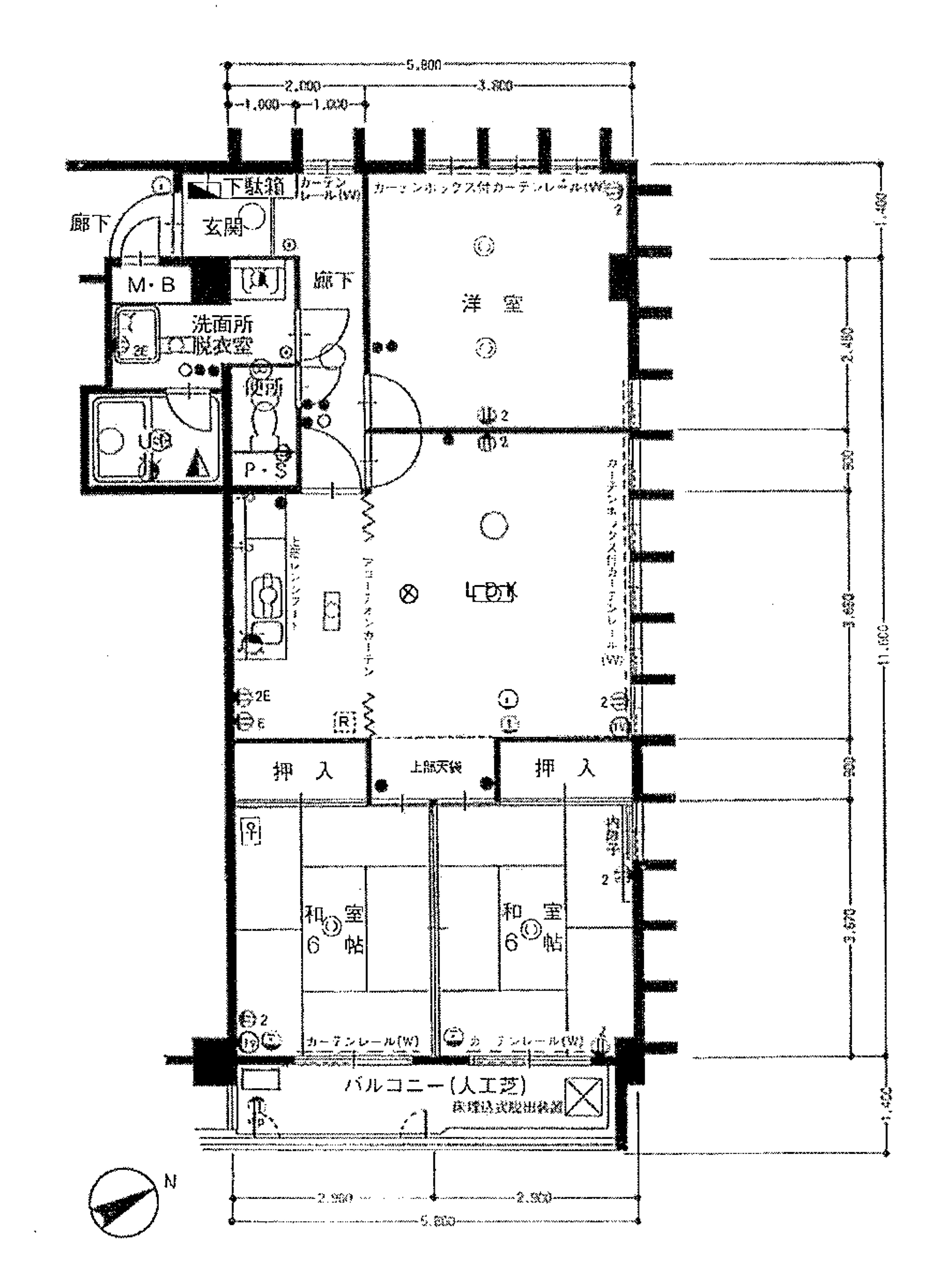
こちらが販売時の物件図面なのですが、旧オーナー様が和室一室をLDKに組み込まれるリフォームをされていました。それを今回は少し配置を変えつつ、3LDKに戻すリノベーション工事をさせて頂きました。

一見すると「なんだ、元の間取りに戻しただけじゃん」と思われるかも知れませんが、実は中の壁紙や洗面室のタイルで「遊び」を取り入れていますし、キッチンにはIKEA製品を使った「オリジナル仕様のアイランドカウンター」などステキな仕掛けがたくさん詰まっている物件です。
床材もステキな無垢材を使われているのに、同エリアで新築マンションを購入されるより半額くらいで「フルリノベーション」ができちゃった物件です。
☆内覧会☆
日時 2015年6月26日(金) 10時〜17時
※ 説明会は午後だけのご対応です。
場所 福岡市中央区荒戸

今回はオーナー様のご好意で「入居前」に内覧させて頂ける状態なので、室内などの建具や備品などには手を触れられないようにお願いします。
また、どちらの物件も駐車場がありませんので、お車でお越しの方には申し訳ありませんがご自身で近隣のコインパーキングなどにご駐車下さい。
実際にお住まいの方がたくさんおられる物件ですので、他のご入居者様のご迷惑にならないよう、時間を区切った予約制の内覧会とさせて頂きます。お手数ですが、必ず事前にご予約の上お越し下さい。
ウェブからの予約はコチラ▶︎はぴりの!予約フォーム
お電話の方はコチラから ▶︎092-980-1100
この機会に、たくさんの皆様にリノベーションの魅力を知って頂ければとても嬉しいです♪



























