2021年新春、はぴりの!は「くらしデザインカンパニー」を目指すトクラスの協力を得て、新たなモデルルームを誕生させます。

アフターコロナを意識した「Enjoy at Home」プロジェクトの第2段となる今回のモデルルームでは、子育て後の夫婦を中心に見据えてデザインと設備選定を行いました。
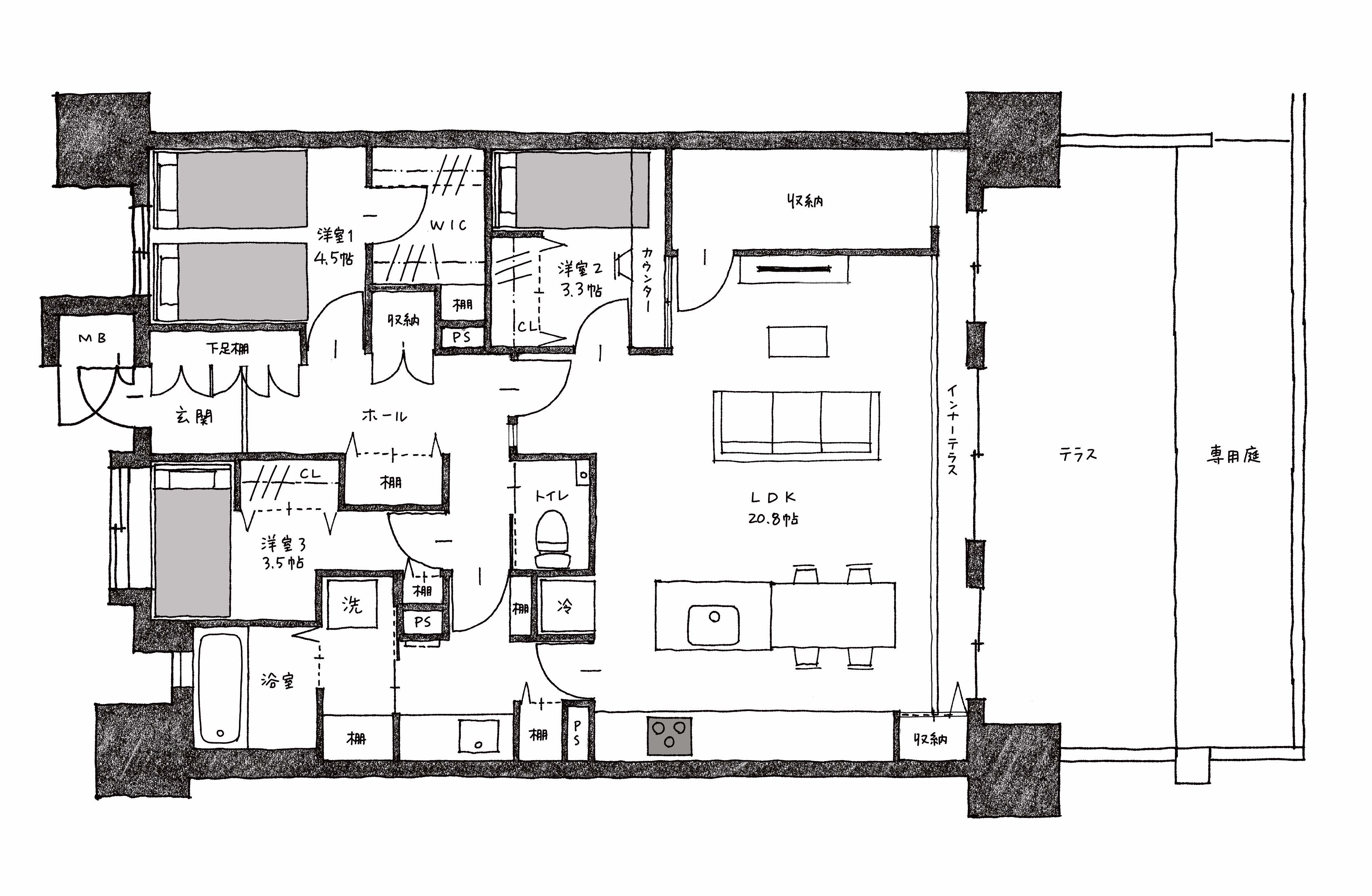
20.8帖のLDKはオトナがくつろげる空間を目指し、元々はバルコニーに面していた3室すべてをリビングとして再配置。しかも、マンションとしては規格外とも言える2.7mの天井高を生かして、間接照明や天井用木材を活かした立体的な設計を行いました。
そんなリビングのアイコンとして、コンロ側だけで全長3.9メートルもの巨大なキッチンを設置。日本で初めて人造大理石のキッチンを製造したトクラス(発売当時は「ヤマハ」ブランド)の協力を得て、継ぎ目のない一枚天板としては国内最長サイズのキッチンをレイアウトしました。
もちろん、見た目だけでなく使い勝手にもこだわったキッチンは、今回の必見ポイントです。
そのほか、今回のモデルルームではたくさんの皆さまの協力を得て、最新の空間づくりを進めています。
床材は朝日ウッドテック、照明は大光電機、クロスはサンゲツなど、各メーカーさんがお持ちのさまざまな製品やデータを元に、空間づくりのアドバイスを頂きました。また、工事に関しては西部ガス、そして設備導入ではデンヒチなど、リノベーション事業の拡大に積極的に取り組む皆さまからの協力も得て進めています。
今回のモデルルームでは単に当社の魅力をお伝えするのではなく、リノベーションの可能性とその魅力について、より多くの方に体感いただける場を目指しています。
場所は福岡市博多区、JR竹下駅から徒歩圏内の自然豊かな環境に立地するマンションの一室です。「お客さまのかけがえのない毎日」を大切にするトクラスと、「将来の生活をハッピーにするリノベーション」をお届けするはぴりの!が協力して作る、新しいモデルルームにぜひご期待ください。
2021年新春、ぜひ現地でお会いしましょう!




























