オープン前から多数のお問合せをいただいている新モデルルームが、いよいよ今週末から公開となります!最近の新築では実現しないような広々としたLDKと、こだわり過ぎない「ほどよいおしゃれな暮らしの場」をご体感ください。
【モデルルーム概要】
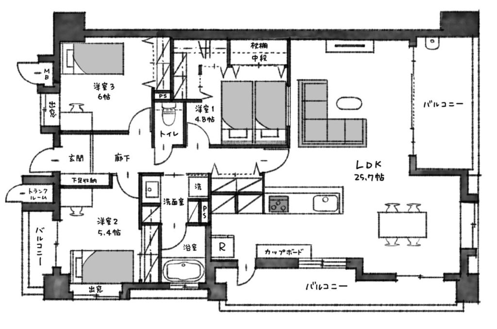
物件名 : エンゼル西新サウスコート
住 所 : 福岡市早良区曙2-4-21
交 通 : 地下鉄空港線「西新駅」より徒歩12分、地下鉄七隈線「別府駅」より徒歩13分
間取り:3LDK
広 さ:95.01㎡
階 数:2階(RC7階建)
築年月:2003年3月
改装費 : 1,400万円
宅内のテイストはナチュラルモダンに統一。建具も人気のウォームグレー色を採用することで、オークのフローリングとマッチした空間が誕生しました。もちろん、福岡でリノベーション実績多数の当社ならではの「デザイン性」と「コスパ」を両立するアイデアも、たっぷりと取り入れた現場です。
新築マンションの平米数は、土地と建築費の高騰でどんどん狭くなっています。都心部では3LDKでも60㎡台が普通ですし、80㎡の広さがあれば4LDKで販売されることが一般的です。
そんな中、今回のモデルルームは贅沢にも95㎡の空間を3LDKへとリノベーション。改装前の4LDKとしてもゆとりを感じる空間でしたが、東南角部屋のレイアウトを活かし、2方向から日照を得られる明るいリビングを実現しました。
リビングは単に家族が食事をし、テレビを見る空間ではなくなりました。子どもたちが勉強をしたり、在宅ワークに使ったり。そんな現代的な暮らしを実現するためには、なにより「中古+リノベ」という選択で総予算を抑えることが有効です。
子育て世代に人気の西新小学校、百道中学校区にある築23年のマンションが、リノベーションでどのように生まれ変わったのか。これからの時代のスタンダートとなる「マイホームのあり方」を、ぜひモデルルームでご体感ください。

※ 本宅は当社のモデルルームとして運用すると共に、販売も行っています。物件購入にご興味がある方は、コチラからお問い合わせください。



























