GW期間の前半、2日間限定でオープンハウスをさせて頂きます。今回は久しぶりの「戸建リノベーション」です。
30年以上前に建てられたしっかりとした作りの戸建だったのですが、どうしても築年数とともに設備の傷みが進んでいました。それだけでなく、もっとも大きな課題は「現在のライフスタイルに合わない間取り」になってしまっていたことです。
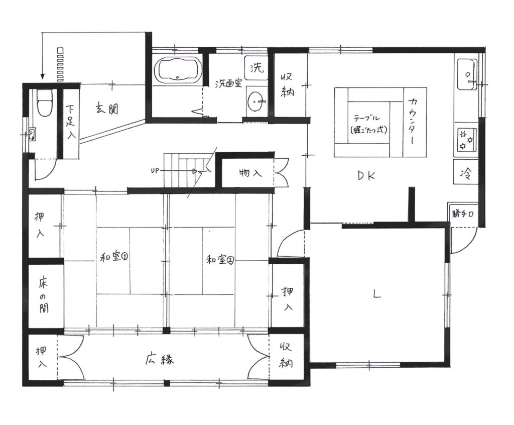
上記が「改装前」の状態です。当時は人気のあった「和室中心」のレイアウトになっていました。その一方、キッチンとリビング空間が分かれているため、いまどきのご家族の生活スタイルからは、なかなか日々の生活をイメージしにくい空間でした。
そこで、はぴりの!ではお客さまのご要望を元に、家族みんなが「毎日を楽しく過ごせるリビング」を中心にして、大きな収納と来客時用の和室をバランス良く配置したプランをご提案させて頂きました(※実際の改装プランは、上記初期プランと一部で異なります)。
戸建ならではのサイズ感を活かしながら、リビングを中心とした家族の空間を1階に集約し、2階は寝室中心のプライベートゾーンになっています。今回の物件は躯体がしっかりしていたので、あまり基礎部分や耐震補強を行う必要はなかったこともあり、内装部分での工事費はおよそ800万円で収まっています。
しかし、戸建の場合、マンションと比べて外装や外構などで費用がかかるのも事実です。それでも、大家族での生活の場として、また相続されたお宅の活用方法として、戸建でも「中古+リノベーション」は新築以上にコスパの良い選択肢であることは間違いありません。
今回のお宅のように「家族にとって必要な部分だけ手を入れる」ことができるのも、リノベーションの魅力です。ぜひ、ご自身の目で「リノベーションで生まれ変わった、現在のライフスタイルに合うリビング」を体感してください。
【オープンハウス概要】
場所 : 太宰府市青葉台(詳しい住所はご予約時にお伝えさせて頂きます)
日時 : 2018年4月29日(日)、30日(月・振替) 10時〜17時(予定)
予約 : はぴりの!福岡本店(電話/092-980-1100)
※ 本宅および本宅周辺に駐車場はありません。公共交通機関でお越し頂くか、お車での来場の際はご自身で駐車スペースを確保して頂くこととなります。
※ 今回のイベントは事前予約が必要です。ご来場希望日時、人数などをお知らせ下さい。
※ 本物件は当社にリノベーションを依頼して頂いたお客様のご好意で、オープンハウス(内覧会)を実施させていただくものです。本宅の販売ではありません。
※ 会場では好評の「初めてのマイホーム選び&リノベーション相談会」を実施しています。初めてご参加された方には、来場記念品(クオカード2,000円)を贈呈しています。



























