さまざまな価格が上がっています。もちろん不動産価格もですし、リフォームやリノベーションの費用もアップしています。
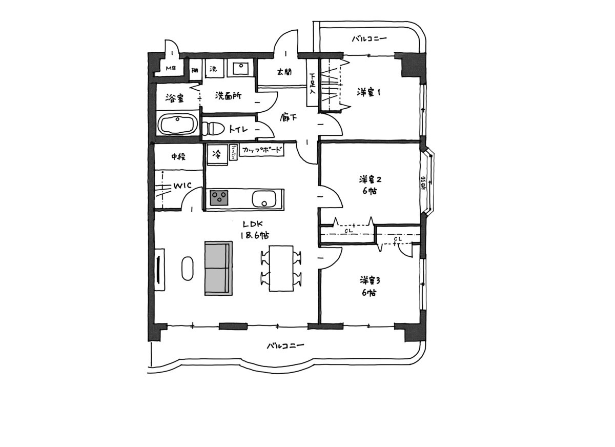
だからこそ、新しくリリースするモデルルームでは、80㎡の広さで850万円という高コスパを実現!既存の間取りをベースにしつつも、広々リビングと収納力を大きくアップして「どうすればコストを下げることができるのか?」を体感いただけるモデルルームとなっています。
オシャレなリノベも大事ですが、やっぱりホンネでは「コスト」も軽視できませんよね。私たちはぴりの!では、日頃から「安心と安全」を優先したリノベーションをご提案していますが、その中には「支払いでも安心」という点も含まれています。
現実的には不動産価格がアップし、建築資材や工賃がアップしている状況では、どうしてもトータルコストが上がっています。だからこそ、調整できるとしたらリノベーション費用しかありません。
今回のモデルルームは82.81㎡という広さを持つ4LDKを、3LDK+Sへと改装し、キッチンやお風呂の水回り設備だけでなく、床や室内建具などもすべて交換しています。
もちろん、コストを下げるための「ヒント」もたくさん取り入れている現場…なのですが、その詳細については現地でご説明させていただきます。
今回のモデルルームは、博多区諸岡にあります。JR笹原駅、西鉄井尻駅からも徒歩圏内の会場です。およそ3ヶ月の間限定でご覧いただける「コスパ最強のモデルルーム」となっていますので、お早めに「予算に合わせたリノベーション」の魅力をご体感ください。
内覧ご希望の方は下記イベント一覧でご選択いただくか、または直接当社の「お問合せ」項目からご予約、またはお電話ください。
最新の「断熱」や「オシャレ」に適応したリノベーションはもちろん、コスパを意識したリノベーションもはぴりの!にお気軽にご相談ください。




























